
IEC60947-4-1
1.1. Контакторы электромагнитные открытого исполнения с естественным воздушным охлаждением серий CJ12 предназначены для включения и отключения приемников электрической энергии на номинальное напряжение 380В, частотой 50Гц, с номинальным током от 100 до 600А.
2. Условия эксплуатации
2.1. Оптимальная температура эксплуатации: от –5°С до +40°С. Оптимальная температура в процессе эксплуатации не должна превышаться более чем на 35°С за сутки.
2.2. Высота над уровнем моря не более 2000м.
2.3. Относительная влажность в месте установки изделия не должна превышать 50% при средней температуре воздуха +40°С. Максимальная средняя за месяц относительная влажность не должна превышать 90% в самый влажный месяц при минимальной средней температуре воздуха +25 °С.
2.4. Класс загрязнения: III.
2.5. Максимальное вертикальное отклонение - не должно превышать ±50.
2.6. Изделие следует устанавливать и эксплуатировать в местах защищенных от вибрации и механического воздействия.
CJ-12 * - * / *
1 2 3 4 5
1. СJ-контактор переменного тока
2. номер серии контактора
Таблица1.
| Тип | Номинальное рабочее напряжение, В | Условный тепловой ток | Номинальный рабочий ток, А | Мех. износ. кол-во циклов ВО 104 операций | Электр. износ. кол-во циклов ВО 104 операций | Допустимая частота опер. циклов в час | |
| АС-1 АС-2 | АС-4 | ||||||
| CJ12-100 | 380 | 100 | 100 | 100 | 300 | 15 | 600 |
| CJ12-150 | 150 | 160 | 160 | ||||
| CJ12-250 | 250 | 250 | 250 | ||||
| CJ12-400 | 400 | 400 | 400 | 100 | 10 | 300 | |
| CJ12-600 | 600 | 600 | 480 | ||||
4.2. Режим работы контакторов:
4.3. Рабочие характеристики сохраняются: при отклонении пиковых питающих напряжений 85-100%Us, при напряжении втягивающей катушки 20-75%Us (AC) или 10-75%Us (DС).
4.4. Номиналы напряжений втягивающей катушки:
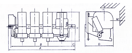
5.1. Основные установочные и габаритные размеры указаны на рис1 и в таблице 2.

Рис 1.
Таблица 2
| Модель | CJ12-100 | CJ12-150 | CJ12-250 | CJ12-400 | CJ12-600 | |
| A | 2P | 316 | 346 | 374 | 420 | 469 |
| (ширина) | 3P | 372 | 409 | 445 | 500 | 566 |
| 4P | 430 | 473 | 516 | 581 | 664 | |
| 5P | 486 | 537 | 586 | 663 | 760 | |
| Модель | CJ12-100 | CJ12-160 | CJ12-250 | CJ12-400 | CJ12-630 | |
| В (уст. размеры) | 2P | 274 | 307 | 335 | 360 | 404 |
| 3P | 330 | 370 | 405 | 440 | 500 | |
| 4P | 386 | 433 | 475 | 520 | 596 | |
| 5P | 442 | 496 | 545 | 600 | 692 | |
| С | 15 | 15 | 15 | 20 | 24 | |
| H (высота) | 194 | 219 | 225 | 296 | 349 | |
| D (глубина) | 195 | 207 | 230 | 274 | 334 | |
| M | 50 | 70 | 80 | 80 | 150 | |
| L | 80 | 70 | 70 | 100 | 120 | |
| Монтажные винты | М10 | М10 | М10 | М12 | М16 | |
6.1. Контактор серии CJ12 – вращающего типа с горизонтальной установочной осью. В данном типе контактора ось и электромагнитная система имеют правое вращение, а вспомогательная часть левое.
Таблица 3
| Номинальный рабочий ток (переменный) | Сталь медь | Сталь панель | ||
| Кол-во соединений | Мин. объем мм3 | Кол-во соединений | Мин. площадь мм х мм | |
| 80 | 1 | 25 | - | - |
| 125 | 50 | |||
| 250 | 120 | |||
| 500 | 2 | 150 | 2 | 30х5 |
| 630 | 185 | 40х5 | ||
Срок гарантии: 12 месяцев с даты продажи.
Гарантийные обязательства принимаются при соблюдении покупателем температурных условий эксплуатации изделия и отсутствии следов прямого воздействия на прибор дождя и снега, а также механического воздействия. По истечении гарантийного срока необходимо произвести ревизию изделия и определить, возможна ли его дальнейшая эксплуатация или прибор требует замены. Если изделие в течение гарантийного срока хранился на складе и не использовался, то при его вводе в эксплуатацию для продления гарантийного срока необходимо уведомить об этом продавца.
9.1 Контактор электромагнитный серии CJ12 – 1 шт.;
9.2 Паспорт (техническое описание) – 1 шт.;
9.3 Ремонтный комплект (согласно ведомости ЗИП - при заказе) – 1 шт.
10.1. Содержание требований настоящего Паспорта распространяется на все типы и серии контакторов.
10.2. Строго следите за номиналами питающих напряжений, частотой и силой ток.