
Секционирующий пункт KIOSK (КИОСК) специально разработан индийской компанией Crompton Greaves для подстанций без обслуживающего персонала в распределительной сети для открытой установки. Это - автономное вакуумное устройство коммутационной аппаратуры со встроенным независимым источником оперативного тока для включения и отключения вакуумного выключателя. Продукт имеет все необходимое для учета, контроля, защиты и SCADA совместимости.
Продукт доступен в двух базовых конструкциях
- С высоковольтными вводами, выведенными на крышу (номинальное напряжение: 10 и 36 (МЭК) кВ)
- С вводами через основание или боковые стенки - ошиновкой или кабелем (номинальное напряжение: 10 кВ)
Отличительные особенности
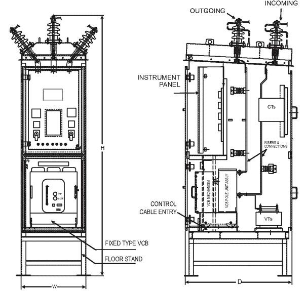
Компактный стационарный / выкатной (опционально) вакуумный выключатель.
протестированы для быстрого автоматического повторного включения с SCADA совместимой системы управления.
для дистанционных измерений вариант с многофункциональным Tri Vector Meter.
установленный выключатель испытан на продолжительную механическую выносливость М2 класса по МЭК 62271 - 100, обеспечивая 10000 последовательностей операций включения-отключения.
Установка на пьедестале, чтобы избежать ржавления нижнего основания и для легкости проводки кабелей.
Гигроскопичная твердая изоляция.
Типовые испытания согласно IEC: 62271 - 100, 200.

12 кВ Настраивают КИОСК
Технические Данные
| Особенности | Единицы измерения | Высоковольтный ввод для прохода через крышу | Сбоку и снизу | Высоковольтный ввод для прохода через крышу | ||
| Нормальное напряжение | кВ | 12 | 36 | |||
| Номинальный ток | Ампер | До 1250 | До 1250 | До 1600 | До 3150 | До 2000 |
| Кол-во полюсов | 3 | |||||
| Частота | Гц | 50 | ||||
| Разрывная мощность при симметричном отключении | кА | до 26.3 | 20 | 26.3 | 40 | 26.3 |
| Включающая способность | кА | 32.75 | 50 | 65.75 | 100 | 65.75 |
| Выдерживаемое напряжение Промышленной частоты | среднеквадратичное значение кВ | 28 | 70 | |||
| Выдерживаемое импульсное напряжение | кВ | 75 | 170 | |||
| Рабочий режим | циклы | 0-0.3sec-C0-3min-C0 (Быстрая готовность к АПВ) | ||||
| Полное Время отключения | циклы | 3 | 3.5 | |||
| Время срабатывания | циклы | 3 | 3 | |||
| Постоянная составляющая тока | % | <50 % | ||||
| Степень защиты | IP 54 | |||||
| Применяемые стандарты | 13118, IEC 62271-100 / 200 | |||||
Габариты секционирующего пункта


KIOSK с высоковольтными вводами для прохода через крышу на 36 кВ

Габаритные размеры (мм)
| Разновидности | W | D | H |
| Ввода сбоку и снизу - 12 кВ | |||
| Ток отключения КЗ 20кА и Номинальный ток 1250 A | 707 | 1840 | 2030 |
| Ток отключения КЗ 26.3кА и Номинальный ток 1600 A | 857 | 1840 | 2030 |
| Ток отключения КЗ 31.5кА и Номинальный ток 1250 A | 707 | 1960 | 2424 |
| Ток отключения КЗ 40кА и Номинальный ток 2000 A | 857 | 1960 | 2424 |
| Высоковольтный ввод для прохода через крышу - 36 кВ | |||
| Ток отключения КЗ 26.3кА и Номинальный ток 1250 A | 1310 | 1675 | 3020 |
| Высоковольтный ввод для прохода через крышу - 12 кВ | |||
| Ток отключения КЗ 20кА и Номинальный ток 800 A | 707 | 1165 | 2435 |
| Ток отключения КЗ 26.3кА и Номинальный ток 1250 A | 707 | 1665 | 2850 |