
KYN28-12(Z) Комплектное распределительное устройство с выкатным элементом от китайской компании CHINT.
Комплектное РУ с выкатным элементом KYN28-12(Z) применяется в электрических трехфазных системах переменного тока частотой 50 Гц на напряжением 3.6-12 кВ для приема и распределения электроэнергии с функциями контроля, защиты и управления. Соответствует требованиям стандарта IEC 60298.
Обозначение модели

Встроенный вакуумный выключатель
Номинальное напряжение
Номер модели
Для использования в помещении
С выкатным элементом
Защищенного тип
Условия эксплуатации
Температура окружающей среды: -5°С ~ ч-40°С;
Относительная влажность:
средняя за день - не более 95%;
средняя за месяц - не более 90%;
Высота над уровнем моря: не более 1000 м;
Интенсивность землетрясения: не более 8 баллов.
Внимание: не допускается эксплуатация при наличии легковоспламеняющихся газов и насыщенного пара и в условиях сильной вибрации.
Таблица 4. Технические параметры
| Название | измерения | Значение |
| Номинальное напряжение | кВ | 10 |
| Максимальное рабочее напряжение | кВ | 12 |
| Номинальная частота | ГЦ | 50 |
| Номинальный ток выключателя | А | 630,1250 |
| Номинальный ток РУ | А | 630,1250 |
| Номинальный кратковременный выдерживаемый ток Номинальный выдерживаемый пиковый ток | кА кА | 16,20,25,31.5, 40,50, 63,80 |
Примечание: по вопросам условий эксплуатации, отличающихся от вышеуказанных, Вы можете обратиться за консультацией в нашу компанию.
KYN28-12(Z)
| Единица | ||
| Название измерения Значение | ||
| Номинальный отключаемый ток короткого замыкания | кА | 16,20,25,31.5 |
| Номинальный ток включаемый на короткое замыкание (пиковый) | кА | 40,50,63,80 |
| Время номинального короткого замыкания (для выключателя ZN63 -12/ для выключателя VD4) | с | 4/3 Между стойками (в случае открытой дверцы ячейки РУ): IP2X Для РУ защищенного типа: IP4X |
| Степень защиты | ||
Примечание 1: необходимо учитывать допустимый ток короткого замыкания для трансформаторов тока по отдельности; Примечание 2: см. соответствующие технические параметры для ZN63-12.
5. Особенности конструкции
5.1 Конструкция РУ (см. рис.5.1):
полностью бронированное устройство комплектного типа;
корпус РУ выполнен из стального листа с алюмоцинковым покрытием и имеет следующие особенности: устойчивость к коррозии, небольшой вес, высокая прочность;
РУ может быть оснащено вакуумными выключателями серии ZN63-12 или VD4, обладает высокой надежностью и длительное время не нуждается в техническом обслуживании;
тележка РУ имеет два положения - рабочее и контрольное. В положениях обеспечивается безопасная работа персонала;
виды тележек изменятся вместе с видами модулей, что удобно при замене тележки и гарантирует, что тележка другого типа модуля не подойдет;
тележка передвигается очень легко и без усилий;
более девяти одножильных кабелей можно разместить в кабельном отсеке;
высоконадежный блокировочный механизм соответствует всем требованиям безопасности;
клапан для снятия давления в отсеке ВН обеспечивает безопасность персонала;
для удобного наблюдения за эксплуатационным режимом внутренних элементов РУ предусмотрено окно на передней панели.
KYN28-12(Z)
1 – сборные шины;
2 – схема цепи;
3 – табличка;
4 – подсветка;
5 – шины сборные;
6 – проходные втулки;
7 – изолятор;
8 – трансформатор тока;
9 – поворотный механизм
заземлителя;
10 – зажим вводного кабеля;
11 – кабель;
12. ;
13 – соединительный замок В/К;
14 – шторный механизм;
15 – выкатной выключатель;
16 – заземляющий выключатель;
17 – изолятор;
18 – обогреватель;
19 – корпус;
20 – клапан сброса давления;
21 – задняя стенка;
22 – съемная пластина

1 – шинопровод
2 – шинопровод КРУ
3 – болт
4 – ростверк
Рис. 5.1 Особенности конструкции комплектного РУ с выкатным элементом KYN28-12(Z)
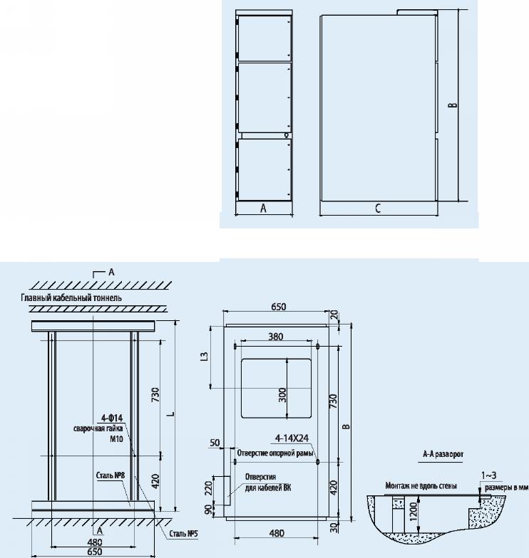
Габаритные размеры
высота: 2200 мм;
ширина: 650 мм (при номинальных токах шины вспомогательной цепи <1250 (при токе к.з. 40 кА (пиковый ток)), 1350 мм (при кабельном подключении);
глубина: 1500 мм (при воздушном подключении).
Схема монтажа оборудования (см. рис. 5.2)
ширина: 650 мм;
глубина: 1350 мм (при кабельном подключении (L 1300 мм)), 1500 мм (при воздушном подключении (L 1450 мм)).

Рис. 5.2 Схема монтажа РУ KYN28-12(Z)
Таблица 5.1 Размеры
| Глубина С (мм) | Глубина В (мм) | L | L3 |
| 650 | 1350 кабельная прокладка | 1300 | 395 |
| 1500 воздушная прокладка | 1450 | 545 |