Трансформаторы серии ТС, ТС3 класса напряжения 0,66 кВ , производства ОАО «Кентауский трансформаторный завод», трехфазные сухие двух обмоточные предназначены для преобразования электроэнергии.
Условное обозначение:
В структуре условного обозначения трансформаторов ТС(3)-ХХ УЗ:
T - трехфазный
С|3) - сухой (в защищенном исполнении)
XX - номинальная мощность, кВА
УЗ - климатическое исполнение и категория размещения
Условия эксплуатации:
Трансформаторы соответствуют требованиям ГОСТ 11677-85.
Режим работы - длительный.
Температура окружающей среды от -45°С до +40°С.
Относительная влажность воздуха не более 80% при 25°С.
Номинальное частота-50 Гд
Схема и группа соединений обмоток У/III (Д)-0 (12)
Степень защиты IPOO (IP11) по ГОСТ 14234. Рабочее положение трансформатора в пространстве вертикальное.
Основные технические данные ТС, ТС3
| Тип трансформатора | Мощность, кВА | Напряжение | НАПРЯЖЕНИЕ КОРОТКОГО ЗАМЫКАНИЯ, % | |
| ВН | НН | |||
| ТС, ТС3 | 10 | 380 | 220 | 2,8 |
| ТС, ТС3 | 10 | 380 | 36 | 2,8 |
| ТС, ТС3 | 16 | 380 | 220 | 3,0 |
| ТС, ТС3 | 25 | 380 | 220 | 3,0 |
| ТС, ТС3 | 25 | 380 | 36 | 3,0 |
| ТС, ТС3 | 40 | 380 | 220 | 3,0 |
| ТС, ТС3 | 63 | 380 | 220 | 4,0 |
| ТС, ТС3 | 100 | 380 | 220 | 4,0 |
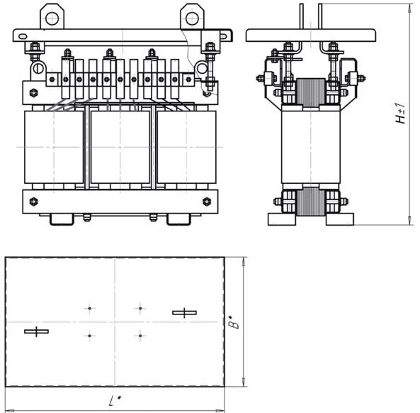
Габаритные размеры и вес
| Тип трансформатора | Н, мм | L, мм | В, мм | Ь, мм | Ы, мм | А, мм | А1, мм | Масса, кг |
| ТС-10 | 450 | 500 | 320 | 248 | 208 | 440 | 350 | 98 |
| ТСЗ-10 | 593 | 566 | 376 | 248 | 208 | 440 | 350 | 118,2 |
| ТС-16 | 475 | 500 | 320 | 248 | 208 | 440 | 350 | 114 |
| ТСЗ-16 | 638 | 566 | 376 | 248 | 208 | 440 | 350 | 135,12 |
| ТС-25 | 570 | 500 | 334 | 254 | 214 | 440 | 350 | 154 |
| ТСЗ-25 | 738 | 566 | 391 | 254 | 214 | 440 | 350 | 177,6 |
| ТС-40 | 580 | 345 | 600 | 265 | 225 | 460 | 350 | 208 |
| ТСЗ-40 | 748 | 636 | 401 | 265 | 225 | 460 | 350 | 233,7 |
| ТС-63 | 600 | 365 | 660 | 285 | 245 | 480 | 400 | 208 |
| TC3-63 | 768 | 669 | 421 | 285 | 245 | 480 | 400 | 313,6 |
| ТС-100 | 680 | 380 | 730 | 299 | 259 | 500 | 400 | 398 |
| ТСЗ-100 | 848 | 746 | 436 | 299 | 259 | 500 | 400 | 431,8 |
По заказу потребителей завод может изготовить трансформаторы с отличающимися от приведенных параметрами любого конструктивного исполнения.
Габаритные размеры трансформаторов ТС 10-100

Габаритные размеры трансформаторов ТС3 10-100

Активная часть ТС, ТС3 10-100

Схема соединения обмоток Д НН

Схема соединения обмоток Ш НН

Схема соединения обмоток ВН

Габаритные размеры ТС, ТС3 10-100
