+7 (351) 215-23-09


Устройство этажное распределительное УЭРМС

Наполнение сайта товарами, услугами, новостями и статьями

УСТРОЙСТВО ЭТАЖНОЕ РАСПРЕДЕЛИТЕЛЬНОЕ УЭРМС

Устройство этажное распределительное модульное секционное типа УЭРМС предназначено для приема, распределения устройств телефонной, радио и телевизионной сетей, оборудования автоматизированной системы контроля и учета электроэнергии. Устройство состоит из двух вертикальных коробов модульных ящиков, в которых размещается силовое и слаботочное оборудование. Короба является связующими элементами всего устройства. УЭРМС классифицируется по количеству квартир на этаже, схеме ввода, расположению короба КСС, номинальному току вводных автоматов, высоте устройства. Если щит ЩСС расположен справа - УЭРМС правое; если ЩСС слева - УЭРМС левое.

Основные преимущества:

  • стойкость к механическим повреждениям и коррозии;
  • аппаратура каждой квартиры в отдельном запираемом шкафчике;
  • позволяет проводить магистрали без штрабления стен;
  • силовые и слаботочные линии разделены по своим каналам;
  • степень защиты IP31;
  • в коробе КЭТ имеются шины N и PE;
  • возможность выравнивания высот и подгона вплотную к потолку.

Дополнительно по теме

Щиты распределительные ЩРН, ЩРВ

Щиты учетно-распределительные ЩРУН

Щиты с монтажной панелью ЩРНМ, ЩМП

Устройство этажное распределительное блочного типа УЭРБ

Корпус для щита этажного ЩЭ

Панели для установки однофазного счетчика ПУ

ОСНОВНЫЕ ТЕХНИЧЕСКИЕ ПАРАМЕТРЫ

УzzzЭzzzРzzzМzzzСzzz*zzz*z-z**z-z*

|zzz|zzz|zzzz|zzzz|zzz|zzz|zzzz|zzzz|Расположение короба КСС: 1-левое, 2-правое

|zzz|zzz|zzzz|zzzz|zzz|zzz|zzzz|Iном расцепителей вводных авт. выкл., А

|zzz|zzz|zzzz|zzzz|zzz|zzz|Схема ввода в квартиру: 1-однофазная, 2-трехфазная

|zzz|zzz|zzzz|zzzz|zzz|Количество квартир на этаже: 2, 3, 4, 5

|zzz|zzz|zzzz|zzzz|Секционное

|zzz|zzz|zzzz|Модульное

|zzz|zzz|Распределительное

|zzz|Этажное

|Устройство

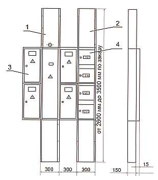
ГАБАРИТНЫЕ И УСТАНОВОЧНЫЕ РАЗМЕРЫ

1 Короб КЭТ-короб электротехнический

2 Короб КСС-короб связи и сигнализации

3 Ящик ЩУР-щит учетно-распределительный (1-4 шт.)

4 Ящик ЩСС-щит связи и сигнализации (2 шт.)

ТВ-отсек телевизионного оборудования

ТФ-отсек телефонной сети

РИД-отсек радиосети и диспетчерезации

АСКУЭ-отсек автоматизированной системы учета электропотребителей

ВАРИАНТЫ ИСПОЛНЕНИЯ

Левое:

Правое: