+7 (351) 215-23-09
Время работы: Пн-Сб 10-17
Диагностирование
Обслуживание и ремонт
Энергосбережение
Электробезопасность
Основы электротехники
Теория электротехники
Расчеты электрических цепей
Электромашины
Электрооборудование
Нормы электрофикации
Оборудование подстанций
Ремонт электрооборудования
Электроснабжение
Воздушные электролинии
Освещение
Главная
Сборник электротехнической информации
КРУ и КТП
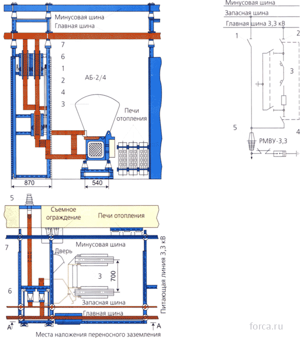
Ячейка 3,3 кВ с выключателем АБ-2/4
План, разрез и схема соединений элементов ячейки РУ - 3,3 кВ с выключателем АБ-2/4
:
1 - обходной разъединитель; 2 - шинный разъединитель; 3 - выключатель АБ - 2/4; 4 - линейный разъединитель; 5 - проходной изолятор; 6 и 7 - опорные изоляторы
выключатель
справка
подстанция