+7 (351) 215-23-09


Наполнение сайта товарами, услугами, новостями и статьями

Приложения А

Приложение А

Конструктивные исполнения

Рисунок А.1 - Конструкция камеры КСО с вакуумным выключатель BB/TEL.

1. Защитный экран; 2. Магистральные шины; 3. ШР; 4. Опорный изолятор; 5. Смотровое окно; 6. Дверь релейного отсека; 7. Дверь кабельного отсека; 8. Светильник; 9. ЛР; 10. Панель управления; 11. Зажим заземления; 12. Короб вторичных цепей; 13. ВВ; 14. ТТ; 15. Опорный изолятор или делитель напряжения; 16. ТН; 17. ОПН; 18. ТТНП.

Рисунок А.2 - Конструкция камеры КСО с вакуумными выключателями ВБП-10, ВБМ-10, Evolis, ВВУ-СЭЩ-10.

1. Защитный экран; 2. Магистральные шины; 3. ШР; 4. Опорный изолятор; 5. Смотровое окно; 6. Дверь релейного отсека; 7. Дверь кабельного отсека; 8. Светильник; 9. ЛР; 10. Панель управления; 11. Зажим заземления; 12. Короб вторичных цепей; 13. ВВ; 14. ТТ; 15. Опорный изолятор или делитель напряжения; 16. ТН; 17. ОПН; 18. ТТНП.

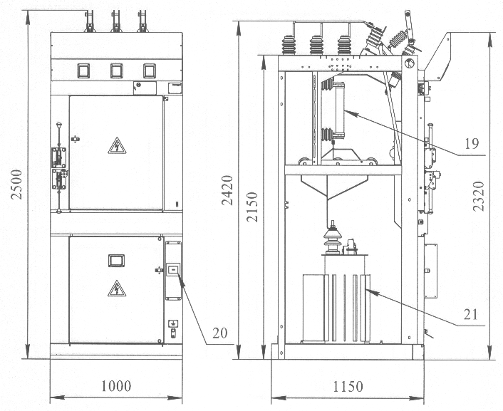
Рисунок А.3 - Конструкция камеры КСО с ТСН.

19. Предохранитель ПКТ; 20. АСН; 21. ТСН.

А.4 - Конструкция камеры КСО с ТН.

22. Предохранитель ПКН; 23. ТН. Рисунок

Рисунок А.5 - Конструкция камеры КСО с СР.

24. CP; 25. 3Н-СР.

Рисунок А.6 - Конструкция камеры КСО с ЗНШ.

26. ЗНШ.

Рисунок А.7 - Конструкция камеры КСО с СР-ТН.

22. Предохранитель ПКН; 23. ТН; 24. CP; 25. ЗН-СР; 26. ЗНШ.

Рисунок А.8 - Конструкция камеры КСО с СР-ПСН.

24. CP; 25. ЗН-СР; 26. ЗНШ; 27. ПСН; 28. Блокировка болтами двери кабельного отсека.

Смотри все содержание по разделу.