6. устройство и работа составных частей
Корпус выключателя представляет собой основание выключателя 25 (рис.5) с установленной на нем несущей панели 27. Корпус сварен из стального листового проката. Со стороны лицевой крышки в раме предусмотрены места для заземления выключателя.
Вал выключателя 17 (см. рис. 6) установлен на двух подшипниках качения. Вал служит для передачи тягового усилия электромагнитного или пружинного привода через изоляционные тяги 7 и узлы поджатия 5 (см. рис.3) на подвижные контакты ВДК, а также осуществляет кинематическую связь с блоком сигнализации, узлом отключения. На валу выключателя собран механизм свободного расцепления. Он состоит из двух рычагов 2 и 4, приваренных к валу выключателя, рычага с роликами 7, который шарнирно с помощью оси 5 установлен между рычагами 6. Благодаря пружине 4 рычаг постоянно стремится повернуться против часовой стрелки, его движение ограничено скобой 8, которая находится между рычагами 6, положение защелки устанавливается с помощью болта 13.
Блок дугогасительный.

Рис.5. Блок дугогасительный
Блок дугогасительный состоит из вакуумной дугогасительной камеры (ВДК) 7, гибкого токоподвода 3 со стороны подвижного контакта ВДК 2 и механизма поджатия, выводов для внешнего присоединения подвижного и неподвижного контактов ВДК. Выводы от подвижного 5 и неподвижного контактов 10 ВДК выполняются для присоединения переходных шин и для установки ламельных узлов.
6.4. Пружинный привод.
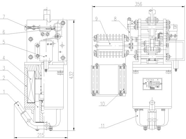
6.4.1. Пружинный привод (рис.6) состоит из несущей панели выключателя 4, установленного на ней мотор-редуктора для заводки включающих пружин 10, синхронизирующего вала привода 2, электромагнита отключения, электромагнита включения, блока коммутирующих контактов для внешних вспомогательных цепей 6, органы управления выключателем (кнопка включения 1 и отключения 5), указатели состояния пружин 11 и положения выключателя 12.
На синхронизирующем валу привода 2 установлен компенсатор 13 и закреплена одним концом пружина демпфера 3. Вал служит для передачи усилия возникающего при освобождении запасенной энергии включающих и отключающих пружин через управляющую и изоляционную тягу к дугогасительным блокам.

Рис.6. Общий вид пружинного привода.
1 - кнопка отключения; 2- кнопка включения; синхронизирующий вал привода; 3- пружина демпфера; 4 - компенсатор (пружинный демпфер); 5 - клеммный ряд; 6 - рукоятка для ручного взвода пружины; 7 - табличка; 8 - двигатель для заводки пружины; 9-блок коммутирующих контактов для внешних вспомогательных цепей; 10 - пружина включения; 11 - счетчик числа срабатывания; 12-указатель положения выключателя; 13 - пружина отключения; 14 - усилитель включения; 15 - синхронизирующий вал привода.
Работа привода при включении выключателя.
При подаче напряжения на электромагнит включения якорь электромагнита перемещается вниз и действует на блок защелок, который освобождает синхронизирующий вал 15, за счет энергии, запасенной пружинами включения, вал привода поворачивается и замыкает контакты ВДК выключателя, защелка механически фиксируется и удерживает выключатель во включенном положении.
Работа привода при оперативном и аварийном отключении выключателя.
При подаче напряжения на электромагнит отключения или на дополнительный электромагнит отключения, или на электромагнит отключения от независимого источника, якорь электромагнита опускается, освобождает защелку удерживающую выключатель во включенном положении. Под действием пружин поджатия дугогасительных блоков и отключающей пружины 13 контакты ВДК размыкаются, защелка возвращается в исходное положение и выключатель отключается.
Работа привода при ручном отключении выключателя.
При нажатии на кнопку 1 (рис.8) поворачивается рычаг, который вторым плечом освобождает защелку. Дальнейшее отключение происходит аналогично п.6.4.3 Кнопка 1 (рис.8) возвращается в исходное положение своей возвратной пружиной.
6.5. Электромагнитный привод.
6.5.1. При подаче напряжения на катушку 4 (см. рис.7) включающего электромагнита якорь электромагнита притягивается к стопу и толкатель воздействует на ролик рычага, при этом другой ролик находится на защелке, вал выключателя поворачивается и через рычаги, изоляционные тяги, узлы поджатия замыкает контакты ВДК, одновременно взводится пружина отключения. В конце хода под действием прижимной силы пружины защелка, шарнир- но установленная на приводе, поворачивается и фиксирует выключатель во включенном положении. Под действием возвратной пружины якорь возвращается в исходное положение.

Рис.7. Общий вид электромагнитного привода 1 -рычаг для ручного включения выключателя; 4 - катушка
Ручное неоперативное включение выключателя осуществляется рычагом для ручного включения выключателя. Рукоятка для ручного включения устанавливается на рычаг ручного включения привода выключателя. Нажатием рукоятки вниз осуществляется включение выключателя.
Отключение выключателя.
При подаче напряжения на катушку отключающего электромагнита его якорь через толкатель воздействует на рычаг, который, в свою очередь, воздействует на защелку механизма свободного расцепления. Защелка выходит из зацепления с роликом рычага и происходит отключение выключателя за счет энергии, запасенной отключающей пружиной и пружинами узлов поджатия. Рычаг, поворачиваясь по часовой стрелке, соскальзывает с защелки и под действием пружины становится на защелку. Механизм подготовлен к включению.
6.5.2. Ручное отключение выключателя осуществляется путем воздействия на кнопку ручного аварийного отключения, которая через рычаг воздействует на защелку и выключатель отключается.
При ручном включении выключателя должны быть приняты меры, препятствующие его опрокидыванию.

6.6. Демпфер.
Пружинный демпфер 4 (рис.6) служит для гашения излишней кинетической энергии механизма выключателя при его отключении. Демпфер состоит из пружины, каретки и защелки.
При отключении выключателя синхронизирующий вал привода поворачивает жестко закрепленную на нем каретку, которая, опрокидываясь, становится на защелку, при этом происходит гашение скорости подвижных масс выключателя.
При включении выключателя синхронизирующий вал привода поворачивается и переводит каретку в исходное положение.
"