Конструкция распредустройства Uniswitch ABB
Распредустройство в металлическом корпусе

Отсек сборных шин
Отсек сборных шин находится в верхней части ячейки. В этом отсеке находятся главные сборные шины распределительного устройства.
Отсек выключателя нагрузки
Трехпозиционный элегазовый выключатель нагрузки размещен в герметичном эпоксидном корпусе, который оборудован смотровым окном для визуального контроля видимого разрыва. Выключатель нагрузки может быть дополнительно оборудован индикатором давления элегаза.
Кабельный отсек
Около 75% внутреннего объема ячейки с выключателем нагрузки предназначено для кабельных вводов ВН. Поэтому есть возможность присоединения как 1-жильных, так и 3-жильных кабелей с помощью простейших, неэкранированных наконечников. При этом остается достаточно места для установки дополнительного оборудования: ОПН, трансформаторов тока, дополнительного заземлителя и т.п. В базовом исполнении дверь ячейки снабжена смотровым окном и блокировкой от несанкционированного открытия двери. Для кабельных вводов в полу ячейки предусмотрены 3 отдельных люка с кронштейном для крепления зажима кабеля соответствующего сечения. Для облегчения присоединения кабелей, пол и порог ячейки можно легко демонтировать.
4. Отсек привода выключателя, блокировок и аппаратуры низкого напряжения
За дверью отсека (одновременно являющейся панелью управления) размещены пружинный привод с индикатором положения контактов и устройство механической блокировки, а также дополнительное оборудование, например: блок-контакты, катушка отключения, механизм аварийного отключения, емкостной индикатор напряжения, блокировки и двигательный привод. Также имеется место для размещения цепей управления и измерительных инструментов, а также для релейной защиты. В ячейках шириной 750мм отсек аппаратуры низкого напряжения может быть разделен дополнительной перегородкой.
Верхняя часть ячейки, включая отсек сборных шин, отсек выключателя нагрузки, привода и отсек аппаратуры низкого напряжения, отделена от нижней части и кабельного отсека. Благодаря этому можно проводить ревизию, текущий ремонт или модернизацию ячейки без вывода её из эксплуатации.
Конструкция распредустройства UniswitchСостав ячейки

1 Верхний модуль
3-позиционный выключатель нагрузки SFG
Привод с механическим индикатором положения контактов
Корпус отсека сборных шин
Отсек аппаратуры низкого напряжения
Устройство блокировки
Сборные шины
Кабельные каналы цепей управления
2 Нижний модуль
Корпус
Выключатель (стационарная версия)
Трансформаторы тока
Заземлители
Трансформаторы напряжения
Кабельные вводы


Ширина: 375 или 500 мм Высота: 1635 или 1885 мм

Ширина: 750 мм Высота: 1635 или 1885 мм
• Типы ячеек Uniswitch ABB
Ячейка выключателя нагрузки, тип SDC

Ширина: 375 или 500 мм Высота: 1635 или 1885 мм
Пример: ячейка с двигательным приводом, трансформаторами тока и индикатором напряжения
Ячейка выключателя нагрузки с предохранителями, тип SDF

Пример: ячейка с двигательным приводом, трансформаторами напряжения и индикатором напряжения
Ячейка выключателя, тип CBC

Пример: ячейка с двигательным приводом, трансформаторами тока и напряжения и индикатором напряжения

Ширина: 375 или 500 мм Высота: 1635 или 1885 мм

Ширина: 375 или 500 мм Высота: 1635 или 1885 мм
Ячейка выключателя в выкатном исполнении, тип CBW

Ширина: 800 мм Высота: 1885 мм
Ячейка глухого ввода, тип DBC

Пример: ячейка с заземлителем, трансформаторами тока и индикатором напряжения
Ячейка шинного подъема, тип BRC ABB

Пример: ячейка с заземлителем, трансформаторами тока и напряжения и индикатором напряжения
Ячейка секционного выключателя нагрузки, тип SEC


Ширина: 375, 500 или 750 мм Высота: 1635 или 1885 мм
Пример: ячейка с двигательным приводом, трансформаторами тока и напряжения и индикатором напряжения

Ширина: 750 мм Высота: 1635 или 1885 мм
Ячейка секционного выключателя нагрузки с предохранителем, тип SEF

Ширина: 375 или 500 мм Высота: 1635 или 1885 мм
Ячейка секционного выключателя ABB, тип SBC

Пример: ячейка с двигательным приводом выключателя, трансформаторами тока и напряжения, дополнительным заземлителем и индикатором напряжения
Ячейка секционного выключателя в выкатном исполнении, тип SBW

Ширина: 800 мм Высота: 1885 мм
Измерительная ячейка с секционным выключателем нагрузки, тип SMD

Ширина: 750 мм Высота: 1635 или 1885 мм
Измерительная ячейка с секционным выключателем, тип SMC

Ширина: 750 мм Высота: 1635 или 1885 мм
Измерительная ячейка, тип BMC

Ширина: 750 мм Высота: 1635 или 1885 мм
Универсальная измерительная ячейка, тип UMC

Ширина: 750 мм Подготовлена к установке универсальных измерительных
Высота: 1635 или 1885 мм трансформаторов, конфигурация шин на заказ
4.1 Типы ячеек Uniswitch
Ячейка выключателя нагрузки, тип SDCЯчейка типа SDC ABB с выключателем нагрузки применяется главным образом как вводная или фидерная ячейка. В стандартном исполнении ячейка укомплектована трехпозиционным элегазовым выключателем нагрузки типа SFG, с приводным механизмом. Трехпозиционный выключатель нагрузки может быть в одном из трех положений: „включен", „отключен" или „ заземлен", тем самым препятствуя неправильным операциям. Доступ в отсек кабельных вводов возможен только в положении выключателя нагрузки: «заземлен». Контактные ножи выключателя нагрузки в положениях «выключен» и «заземлен» видны через смотровое окно в задней стенке отсека аппаратуры низкого напряжения. Визуальный контроль состояния кабельных вводов и индикаторов короткого замыкания проводится через смотровое окно в передней двери ячейки.



| Номинальное напряжения | [кВ] | 12 | 17,5 | 24 |
| Номинальный ток | [A] | 630/800 | 630/800 | 630 |
| Номинальный выдерживаемый | ||||
| кратковременный ток | [кА] | 25 | 20 | 20 |
| Номинальная длительность КЗ | [с] | 2 | 3 | 3 |
| Габаритные размеры ячейки | ||||
| - ширина | [мм] | 375/500 | 375/500 | 375/500 |
| - глубина | [мм] | 1000 | 1000 | 1000 |
| - высота | [мм] | 1635/1885 | 1635/1885 | 1635/1885 |
Для безопасности проведения испытаний кабельных вводов ячейка в стандартном исполнении комплектуется уникальной механической блокировкой. Технические данные ячейки типа SDC
Основное оборудование
Компоновка верхнего модуля:
3-позиционный выключатель нагрузки
механизм привода с механическим индикатором положения выключателя нагрузки
корпус отсека сборных шин
отсек аппаратуры низкого напряжения
блокировочный узел
сборные шины
заземляющая шина
Компоновка нижнего модуля:
корпус отсека кабельных вводов
люки для кабельных вводов и кронштейн для крепления кабельных зажимов.
Дополнительное оборудование
встроенный индикатор напряжения или контрольное гнездо для переносного индикатора
блок-контакты для положений "включён" (2НЗ+2НО) и "заземлён" (2НЗ+2НО)
индикатор давления газа с контактом аварийной сигнализации
двигательный привод
трансформаторы тока
газовый канал
кабельный канал цепей управления
ограничители перенапряжений
анти-конденсатный нагреватель
сквозная заземляющая шина
шина заземления аппаратов
индикатор короткого замыкания
Ячейка выключателя нагрузки с предохранителями, тип SDFЯчейка типа SDF с выключателем нагрузки и с предохранителями применяется, главным образом, для защиты трансформаторов и измерения напряжения. В стандартном исполнении ячейка укомплектована трехпозиционным элегазовым выключателем нагрузки типа SFG и заземлителем. Со стороны сборных шин предохранители заземляются выключателем нагрузки, а со стороны кабельных вводов с помощью дополнительного заземлителя. Выключатель нагрузки управляется двухпружинным приводом с функцией автоматического отключения при перегорании предохранителя. Доступ в отсек кабельных вводов возможен только когда выключатель находится в положении «заземлен». Контактные ножи выключателя нагрузки в положениях «выключен» и «заземлен» видны через смотровое окно в задней стенке отсека аппаратуры низкого напряжения. Визуальный контроль состояния кабельных вводов и индикаторов короткого замыкания проводится через смотровое окно в передней двери ячейки.
Основное оборудование
Компоновка верхнего модуля:
3-позиционный выключатель нагрузки
механизм привода с механическим индикатором положения выключателя нагрузки
корпус отсека сборных шин
отсек аппаратуры низкого напряжения
блокировочный узел
механизм отключения выключателя нагрузки при перегорании предохранителя с индикатором срабатывания
сборные шины
заземляющая шина
Компоновка нижнего модуля:
заземлитель, тип EF
предохранители
корпус отсека кабельных вводов
люки для кабельных вводов и кронштейн для крепления кабельных зажимов.
Дополнительное оборудование
встроенный индикатор напряжения или контрольное гнездо для переносного индикатора
блок-контакты для положений "включён" (2НЗ+2НО) и "заземлён" (2НЗ+2НО)
блок-контакты для отключения при перегорании предохранителя (1НО+1НЗ)
индикатор давления газа с контактом аварийной сигнализации
механизм аварийного отключения
катушка отключения
двигательный привод
трансформаторы напряжения
газовый канал
кабельный канал цепей управления
анти-конденсатный нагреватель
шина заземления аппаратов



Технические данные ячейки типа SDF
| Номинальное напряжение | [кВ] | 12 | 17,5 | 24 |
| Номинальный ток | ||||
| (макс. ток предохранителя) | [A] | 125 | 100 | 80 |
| Номинальный выдерживаемый | ||||
| кратковременный ток | [кА] | 25 | 20 | 20 |
| Номинальная длительность КЗ | [с] | 2 | 3 | 3 |
| Длина предохранителя | [мм] | 292/442 | 292/442 | 442 |
| Габаритные размеры ячейки | ||||
| - ширина | [мм] | 375/500 | 375/500 | 375/500 |
| - глубина | [мм] | 1000 | 1000 | 1000 |
| - высота | [мм] | 1635/1885 | 1635/1885 | 1635/1885 |
Ячейка выключателя, тип CBC
Ячейка типа СВС с силовым выключателем предназначена для управления и защиты распределительных линий, сетей, двигателей, трансформаторов, конденсаторных батарей и т.д. В ячейке может быть установлен вакуумный или элегазовый выключатель. Выключатель установлен на направляющих и присоединен к сборным шинам. Для разрыва цепи между выключателем и сборными шинами между ними установлен трехпозиционный разъединитель с заземляющим ножем.



| Номинальное напряжение | [кВ] | 12 | 17,5 | 24 |
| Номинальный ток | [A] | 630/800 | 630/800 | 630 |
| Номинальный выдерживаемый | ||||
| кратковременный ток | [кА] | 25 | 20 | 20 |
| Номинальная длительность КЗ | [с] | 2 | 3 | 3 |
| Габаритные размеры ячейки | ||||
| - ширина | [мм] | 750 | 750 | 750 |
| - глубина | [мм] | 940+215 | 940+215 | 940+215 |
| - высота | [мм] | 1635/1885 | 1635/1885 | 1635/1885 |
Uniswitch ABB
Типы ячеек
Для обеспечения безопасности обслуживающего персонала используется механическая блокировка, позволяющая открыть дверь ячейки только когда разъединитель находится в положении "заземлен". Конструкция ячейки предусматривает установку трансформаторов тока и напряжения.
Основное оборудование
Компоновка верхнего правого модуля:
3-позиционный выключатель нагрузки
механизм привода с механическим индикатором положения выключателя нагрузки
корпус отсека сборных шин
блокировочный узел
сборные шины
заземляющая шина
Компоновка верхнего левого модуля:
отсек аппаратуры низкого напряжения
корпус отсека сборных шин
Компоновка нижнего модуля:
заземлитель, тип EM
корпус отсека кабельных вводов
люки для кабельных вводов и кронштейн для крепления кабельных зажимов.
Дополнительное оборудование
вакуумный или элегазовый выключатель
встроенный индикатор напряжения или контрольное гнездо для переносного индикатора
трансформаторы тока
трансформаторы напряжения
трансформатор нулевой последовательности
блок-контакты для положений "включён" (2НЗ+2НО) и "заземлён" (2НЗ+2НО)
индикатор давления газа с контактом аварийной сигнализации
двигательный привод
газовый канал
кабельный канал цепей управления
анти-конденсатный нагреватель
сквозная заземляющая шина
шина заземления аппаратов
Ячейка выключателя в выкатном исполнении, тип CBW

Типы ячеек Uniswitch ABB
Ячейка типа CBW это ячейка с выключателем в выкатном исполнении, предназначенная для управления и защиты распределительных линий, сетей, двигателей, трансформаторов, конденсаторных батарей и т.д. В ячейке может быть установлен вакуумный или элегазовый выключатель. Выкатная тележка выключателя выполняет функцию разъединителя. Отдельный заземлитель служит для заземления кабелей.
| Технические данные ячейки типа CBW | ||||
| Номинальное напряжение | [кВ] | 12 | 17,5 | 24 |
| Номинальный ток сборных шин | [A] | 1250 | 1250 | 1250 |
| Номинальный ток выключателя | [A] | 630/1250 | 630 / 1250 | 630 / 1250 |
| Номинальный выдерживаемый | ||||
| кратковременный ток | [кА] | 25 | 20 | 20 |
| Номинальная длительность КЗ | [с] | 1 | 1 | 1 |
| Габаритные размеры ячейки | ||||
| - ширина | [мм] | 800 | 800 | 800 |
| - глубина | [мм] | 1335 | 1335 | 1335 |
| - высота | [мм] | 1885 | 1885 | 1885 |
Для обеспечения безопасности обслуживающего персонала выключатель и заземлитель блокируют дверь ячейки.
Имеется широкий выбор устройств защиты и управления доступных к установке в ячейке, от простейших автономных реле защиты до сложных устройств мониторинга, защиты и управления.
Основное оборудование
стальной оцинкованный корпус ячейки со встроенным газовым каналом для отвода газов от горения дуги, расположенным сзади ячейки
сборные шины
неметаллическая перегородка и заслонки
отсек аппаратуры низкого напряжения
вакуумный или элегазовый выключатель в выкатном исполнении
заземлитель с устройством блокировки
люки для кабельных вводов и кронштейн для крепления кабельных зажимов.
Дополнительное оборудование
встроенный индикатор напряжения или контрольное гнездо для переносного индикатора
трансформаторы тока
трансформаторы напряжения или ограничители перенапряжений
трансформатор нулевой последовательности
дополнительные блок-контакты
кабельный канал цепей управления
анти-конденсатный нагреватель
сквозная заземляющая шина
шина заземления аппаратов
электрический индикатор положения выключателя
электрическая блокировка заземлителя
электрическая блокировка выкатной тележки
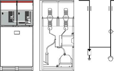
Ячейка глухого ввода, тип DBCОсновное оборудование
Компоновка верхнего модуля
проходные изоляторы
корпус отсека сборных шин
блокировочный узел (только при использовании заземлителя (ЕМ)
отсек аппаратуры низкого напряжения
сборные шины
заземляющая шина
Компоновка нижнего модуля ABB:
корпус отсека кабельных вводов
возможность присоединения параллельных кабелей
люки для кабельных вводов и кронштейн для крепления кабельных зажимов или трансформаторов напряжения.
Дополнительное оборудование
встроенный индикатор напряжения или контрольное гнездо для переносного индикатора
трансформаторы тока
заземлитель для трансформаторов тока, тип (EM)
газовый канал
кабельный канал цепей управления
ограничители перенапряжений
анти-конденсатный нагреватель

Для непосредственного подключения кабелей к сборным шинами используется ячейка глухого ввода. Ячейка комплектуется кабельными зажимами для фиксации кабелей. В ячейке шириной 500 мм возможна установка трансформаторов тока.
Нижняя передняя дверь ячейки (не укомплектованной заземлителем) может быть открыта только с помощью специального инструмента. В двери имеется смотровое окно для визуального контроля.
сквозная заземляющая шина
| Технические данные ячейки типа DBC | ||||
| Номинальное напряжение | [кВ] | 12 | 17,5 | 24 |
| Номинальный ток | [A] | 630/1250 | 630/1250 | 630/1250 |
| Номинальный выдерживаемый | ||||
| кратковременный ток | [кА] | 25 | 20 | 20 |
| Номинальная длительность КЗ | [с] | 2 | 3 | 3 |
| Габаритные размеры ячейки | ||||
| - ширина | [мм] | 375/500 | 375/500 | 375/500 |
| - глубина | [мм] | 1000 | 1000 | 1000 |
| - высота | [мм] | 1635/1885 | 1635/1885 | 1635/1885 |
Ячейка шинного подъема типа BRC соединяет сборные шины с ячейкой секционного выключателя или секционного выключателя нагрузки. Ячейка шириной 500 мм может применяться в качестве измерительной ячейки, в которой предусмотрено место для установки трех трансформаторов тока и трех трансформаторов напряжения.
Переднюю нижнюю дверь ячейки можно открыть только с помощью специального инструмента.

| Технические данные ячейки типа BRC ABB | ||||
| Номинальное напряжение | [кВ] | 12 | 17,5 | 24 |
| Номинальный ток | [A] | 630/1250 | 630/1250 | 630/1250 |
| Номинальный выдерживаемый | ||||
| кратковременный ток | [кА] | 25 | 20 | 20 |
| Номинальная длительность КЗ | [с] | 2 | 3 | 3 |
| Габаритные размеры ячейки | ||||
| - ширина | [мм] | 375/500 | 375/500 | 375/500 |
| - глубина | [мм] | 1000 | 1000 | 1000 |
| - высота | [мм] | 1635/1885 | 1635/1885 | 1635/1885 |
Передняя дверь оборудована смотровым окном для визуального контроля.
Основное оборудование
Компоновка верхнего модуля
проходные изоляторы
корпус отсека сборных шин
отсек аппаратуры низкого напряжения
сборные шины
заземляющая шина
Компоновка нижнего модуля:
корпус отсека подъема шин с шинами
нижняя перегородка
Дополнительное оборудование
встроенный индикатор напряжения или контрольное гнездо для переносного индикатора
трансформаторы тока
трансформаторы напряжения
заземлитель с индикатором положения
блок-контакты для заземлителя (2НЗ+2НО)
газовый канал
кабельный канал цепей управления
анти-конденсатный нагреватель
сквозная заземляющая шина
Ячейка секционного выключателя нагрузки, тип SECОсновное оборудование
Компоновка верхнего модуля:
3-позиционный выключатель нагрузки
механизм привода с механическим индикатором положения выключателя нагрузки
корпус отсека сборных шин
отсек аппаратуры низкого напряжения
блокировочный узел
сборные шины
заземляющая шина
Компоновка нижнего модуля:
корпус с секционированными сборными шинами
нижняя перегородка
Дополнительное оборудование
встроенный индикатор напряжения или контрольное гнездо для переносного индикатора
блок-контакты для положений "включён" (2НЗ+2НО) и "заземлён" (2НЗ+2НО)
индикатор давления газа с контактом аварийной сигнализации
двигательный привод
газовый канал
кабельный канал цепей управления
трансформаторы тока
анти-конденсатный нагреватель
сквозная заземляющая шина

Секционная ячейка с выключателем нагрузки всегда используется совместно с ячейкой шинного подъема типа BRC. Ячейка стандартного исполнения (шириной 375 мм) комплектуется трехпозиционным элегазовым выключателем нагрузки для секционирования сборных шин и заземлителем.
шина заземления аппаратов
трансформаторы напряжения
Технические данные ячейки типа SEC ABB
| Номинальное напряжение | [кВ] | 12 | 17,5 | 24 |
| Номинальный ток | [A] | 630/800 | 630/800 | 630 |
| Номинальный выдерживаемый | ||||
| кратковременный ток | [кА] | 25 | 20 | 20 |
| Номинальная длительность КЗ | [с] | 2 | 3 | 3 |
| Габаритные размеры ячейки | ||||
| - ширина | [мм] | 375/500/750 | 375/500/750 | 375/500/750 |
| - глубина | [мм] | 1000 | 1000 | 1000 |
| - высота | [мм] | 1635/1885 | 1635/1885 | 1635/1885 |
Ячейка секционного выключателя нагрузки с предохранителем, тип SEF
Ячейка типа SEF используется в случае необходимости защиты секционного выключателя нагрузки предохранителем, или измерения напряжения на трансформаторном фидере. Со стороны сборных шин предохранители заземляются выключателем нагрузки, а со стороны кабельных вводов с помощью дополнительного заземлителя.

Выключатель нагрузки управляется двухпружинным приводом с функцией автоматического отключения при перегорании предохранителя. Доступ в отсек кабельных вводов возможен только когда выключатель находится в положении «заземлен». Контактные ножи выключателя нагрузки в положениях «выключен» и «заземлен» видны через смотровое окно в задней стенке отсека аппаратуры низкого напряжения. Присоединение к ячейке шинного подъема может быть как с левой, так и справой стороны.
Основное оборудование
Компоновка верхнего модуля:
3-позиционный выключатель нагрузки
механизм привода с механическим индикатором положения выключателя нагрузки
корпус отсека сборных шин
отсек аппаратуры низкого напряжения
блокировочный узел
механизм отключения выключателя нагрузки при перегорании предохранителя с индикатором срабатывания
сборные шины
заземляющая шина
Компоновка нижнего модуля:
заземлитель, тип EF
предохранители
Дополнительное оборудование
встроенный индикатор напряжения или контрольное гнездо для переносного индикатора
блок-контакты для положений "включён" (2НЗ+2НО) и "заземлён" (2НЗ+2НО)
блок-контакты для отключения при перегорании предохранителя (1НО+1НЗ)
индикатор давления газа с контактом аварийной сигнализации
механизм аварийного отключения
катушка отключения
двигательный привод
газовый канал
кабельный канал цепей управления
анти-конденсатный нагреватель
сквозная заземляющая шина
Технические данные ячейки типа SEF ABB
| Номинальное напряжение | [кВ] | 12 | 17,5 | 24 |
| Номинальный ток | ||||
| (макс. ток предохранителя) | [A] | 125 | 100 | 80 |
| Номинальный выдерживаемый | ||||
| кратковременный ток | [кА] | 25 | 20 | 20 |
| Номинальная длительность КЗ | [с] | 2 | 3 | 3 |
| Длина предохранителя | [мм] | 292/442 | 292/442 | 442 |
| Габаритные размеры ячейки | ||||
| - ширина | [мм] | 375/500 | 375/500 | 375/500 |
| - глубина | [мм] | 1000 | 1000 | 1000 |
| - высота | [мм] | 1635/1885 | 1635/1885 | 1635/1885 |
шина заземления аппаратов
Ячейка секционного выключателя, тип SBC ABBСекционная ячейка с силовым выключателем всегда используется совместно с ячейкой шинного подъема типа BRC. Ячейка стандартного исполнения комплектуется
трехпозиционным элегазовым выключателем нагрузки, установленным последовательно с секционным выключателем. Ячейка оборудована вакуумным или элегазовым выключателем. Выключатель установлен на направляющих и присоединен к сборным шинам. Выключатель нагрузки всегда оборудован заземлителем.

Для обеспечения безопасности обслуживающего персонала используется механическая блокировка, позволяющая открыть дверь ячейки только когда разъединитель находится в положении "заземлен". Конструкция ячейки предусматривает установку трансформаторов тока и напряжения.
Основное оборудование
Компоновка правого модуля:
3-позиционный выключатель нагрузки
механизм привода с механическим индикатором положения выключателя нагрузки
корпус отсека сборных шин
блокировочный узел
сборные шины
заземляющая шина
Компоновка левого модуля:
отсек аппаратуры низкого напряжения
корпус отсека сборных шин
Дополнительное оборудование
вакуумный или элегазовый выключатель
встроенный индикатор напряжения или контрольное гнездо для переносного индикатора
трансформаторы тока
трансформаторы напряжения
блок-контакты для положений "включён" (2НЗ+2НО) и "заземлён" (2НЗ+2НО)
индикатор давления газа с контактом аварийной сигнализации
двигательный привод
газовый канал
кабельный канал цепей управления
анти-конденсатный нагреватель
заземлитель, тип ЕМ
сквозная заземляющая шина
Технические данные ячейки типа SBC
| Номинальное напряжение | [кВ] | 12 | 17,5 | 24 |
| Номинальный ток | [A] | 630/800 | 630/800 | 630 |
| Номинальный выдерживаемый | ||||
| кратковременный ток | [кА] | 25 | 20 | 20 |
| Номинальная длительность КЗ | [с] | 2 | 3 | 3 |
| Габаритные размеры ячейки | ||||
| - ширина | [мм] | 750 | 750 | 750 |
| - глубина | [мм] | 1155 | 1155 | 1155 |
| - высота | [мм] | 1635/1885 | 1635/1885 | 1635/1885 |
шина заземления аппаратов
Измерительная ячейка с секционным выключателем нагрузки, тип SMDИзмерительная ячейка с секционным выключателем нагрузки типа SMD, в основном, используется при необходимости измерения тока и напряжения по стороне среднего напряжения и/или секционирования распредустройства. Основой ячейки являются два отдельно управляемых трехпозиционных выключателя нагрузки типа SFG. Выключатели нагрузки расположены на концах секций шин. Трансформаторы тока и напряжения расположены в правой части ячейки.

Технические данные ячейки типа SMD
| Номинальное напряжение | [кВ] | 12 | 17,5 | 24 |
| Номинальный ток | [A] | 630/800 | 630/800 | 630 |
| Номинальный выдерживаемый | ||||
| кратковременный ток | [кА] | 25 | 20 | 20 |
| Номинальная длительность КЗ | [с] | 2 | 3 | 3 |
| Габаритные размеры ячейки | ||||
| - ширина | [мм] | 750 | 750 | 750 |
| - глубина | [мм] | 940+60 | 940+60 | 940+60 |
| - высота | [мм] | 1635/1885 | 1635/1885 | 1635/1885 |
Трехпозиционные выключатели нагрузки блокируют переднюю дверь ячейки, которая может быть открыта только когда выключатели нагрузки находятся в положении "заземлен".
Основное оборудование
Компоновка верхнего левого модуля ABB
3-позиционный выключатель нагрузки
механизм привода с механическим индикатором положения выключателя нагрузки
отсек аппаратуры низкого напряжения
блокировочный узел
сборные шины
заземляющая шина
Компоновка верхнего правого
модуля
3-позиционный выключатель нагрузки
механизм привода с механическим индикатором положения выключателя нагрузки
отсек аппаратуры низкого напряжения
блокировочный узел
сборные шины
заземляющая шина
Компоновка нижнего модуля:
корпус отсека сборных шин
Дополнительное оборудование
встроенный индикатор напряжения или контрольное гнездо для переносного индикатора
блок-контакты для положений "включён" (2НЗ+2НО) и "заземлён" (2НЗ+2НО)
индикатор давления газа с контактом аварийной сигнализации
трансформаторы тока
трансформаторы напряжения
газовый канал
кабельный канал цепей управления
анти-конденсатный нагреватель
сквозная заземляющая шина
шина заземления аппаратов
Ячейка секционного выключателя в выкатном исполнении, тип SBWЯчейка типа SBW это ячейка секционного выключателя в выкатном исполнении, которая всегда используется совместно с ячейкой шинного подъема типа BRC. Ячейка комплектуется вакуумным или элегазовым выключателем. Выкатная тележка выключателя выполняет функцию разъединителя. Для заземления сборных шин может быть использован дополнительный заземлитель.
Для обеспечения безопасности обслуживающего персонала выключатель и заземлитель блокируют дверь ячейки.

| Технические данные ячейки типа SBW ABB | ||||
| Номинальное напряжение | [кВ] | 12 | 17,5 | 24 |
| Номинальный ток сборных шин | [A] | 1250 | 1250 | 1250 |
| Номинальный ток выключателя | [A] | 630/1250 | 630 / 1250 | 630 / 1250 |
| Номинальный выдерживаемый | ||||
| кратковременный ток | [кА] | 25 | 20 | 20 |
| Номинальная длительность КЗ | [с] | 1 | 1 | 1 |
| Габаритные размеры ячейки | ||||
| - ширина | [мм] | 800 | 800 | 800 |
| - глубина | [мм] | 1335 | 1335 | 1335 |
| - высота | [мм] | 1885 1) | 1885 1) | 1885 1) |
1) 1905 мм в ячейках с кабельным каналом
Имеется широкий выбор устройств защиты и управления доступных к установке в ячейке, от простейших автономных реле защиты, до сложных устройств мониторинга, защиты и управления.
Основное оборудование
стальной оцинкованный корпус ячейки со встроенным газовым каналом дуговой защиты расположенный сзади ячейки
сборные шины
неметаллическая перегородка и заслонки
отсек аппаратуры низкого напряжения
вакуумный или элегазовый выключатель в выкатном исполнении
заземлитель с устройством блокировки
Дополнительное оборудование
встроенный индикатор напряжения или контрольное гнездо для переносного индикатора
трансформаторы тока
дополнительные блок-контакты
кабельный канал цепей управления
анти-конденсатный нагреватель
сквозная заземляющая шина
шина заземления аппаратов
Измерительная ячейка с секционным выключателем, тип SMCИзмерительная ячейка с секционным выключателем типа SMC, в основном, используется при необходимости измерения тока и напряжения по стороне среднего напряжения и/или секционирования распредустройства. Основой ячейки являются выключатель, установленный на направляющих, и два отдельно управляемых трехпозиционных выключателя нагрузки типа SFG. Выключатели нагрузки расположены на концах секций шин, а выключатель - между ними, под левым выключателем нагрузки. Трансформаторы тока и напряжения расположены справа от выключателя.

Технические данные ячейки типа SMC ABB
| Номинальное напряжение | [кВ] | 12 | 17,5 | 24 |
| Номинальный ток | [A] | 630/800 | 630/800 | 630 |
| Номинальный выдерживаемый | ||||
| кратковременный ток | [кА] | 25 | 20 | 20 |
| Номинальная длительность КЗ | [с] | 2 | 3 | 3 |
| Габаритные размеры ячейки | ||||
| - ширина | [мм] | 750 | 750 | 750 |
| - глубина | [мм] | 940+215 | 940+215 | 940+215 |
| - высота | [мм] | 1635/1885 | 1635/1885 | 1635/1885 |
Трехпозиционные выключатели нагрузки блокируют переднюю дверь ячейки, которая может быть открыта только когда выключатели нагрузки находятся в положении "заземлен".
Основное оборудование
Компоновка верхнего левого модуля:
3-позиционный выключатель нагрузки
механизм привода с механическим индикатором положения выключателя нагрузки
отсек аппаратуры низкого напряжения
блокировочный узел
сборные шины
заземляющая шина
Компоновка верхнего правого
модуля:
3-позиционный выключатель нагрузки
механизм привода с механическим индикатором положения выключателя нагрузки
отсек аппаратуры низкого напряжения
блокировочный узел
сборные шины
заземляющая шина
Компоновка нижнего модуля:
корпус отсека сборных шин
Дополнительное оборудование
вакуумный или элегазовый выключатель
встроенный индикатор напряжения или контрольное гнездо для переносного индикатора
блок-контакты для положений "включён" (2НЗ+2НО) и "заземлён" (2НЗ+2НО)
индикатор давления газа с контактом аварийной сигнализации
трансформаторы тока
трансформаторы напряжения
газовый канал
кабельный канал цепей управления
анти-конденсатный нагреватель
сквозная заземляющая шина
шина заземления аппаратов
Измерительная ячейка, тип BMCОсновное оборудование
Компоновка верхнего левого модуля
отсек аппаратуры низкого напряжения
блокировочный узел
сборные шины
заземляющая шина
проходные изоляторы
Компоновка верхнего правого модуля
отсек аппаратуры низкого напряжения
блокировочный узел
сборные шины
проходные изоляторы
Компоновка нижнего модуля:
корпус отсека сборных шин
Дополнительное оборудование
встроенный индикатор напряжения или контрольное гнездо для переносного индикатора
трансформаторы тока
трансформаторы напряжения
газовый канал
кабельный канал цепей управления
анти-конденсатный нагреватель

Измерительная ячейка типа BMC, в основном используется при необходимости измерения напряжения и тока по стороне среднего напряжения. Трансформаторы тока и напряжения расположены в правой части ячейки. Доступ в отсек кабелей возможен только при отключении блокировки двери (блокировка в положении "дверь открыта").
сквозная заземляющая шина
| Технические данные ячейки типа | BMC | ABB | ||
| Номинальное напряжение | [кВ] | 12 | 17,5 | 24 |
| Номинальный ток | [A] | 630/1250 | 630/1250 | 630/1250 |
| Номинальный выдерживаемый | ||||
| кратковременный ток | [кА] | 25 | 20 | 20 |
| Номинальная длительность КЗ | [с] | 2 | 3 | 3 |
| Габаритные размеры ячейки | ||||
| - ширина | [мм] | 750 | 750 | 750 |
| - глубина | [мм] | 1000 | 1000 | 1000 |
| - высота | [мм] | 1635/1885 1635/1885 | 1635/1885 | |
Универсальная измерительная ячейка, тип UMC
Универсальная измерительная ячейка типа UMC, используется при необходимости специального размещения трансформаторов для измерения тока и напряжения по стороне среднего напряжения. Гибкость конструкции ячейки удовлетворяет большинству требований заказчиков по размещению измерительных трансформаторов и кабелей. Пожалуйста ознакомьтесь с возможными вариантами конфигурации сборных шин, показанными на русунке внизу.


6 основных конфигураций ячейки ABB
| Номинальное напряжение | [кВ] | 12 | 17,5 | 24 |
| Номинальный ток | [A] | 630/1250 | 630/1250 | 630/1250 |
| Номинальный выдерживаемый | ||||
| кратковременный ток | [кА] | 25 | 20 | 20 |
| Номинальная длительность КЗ | [с] | 2 | 3 | 3 |
| Габаритные размеры ячейки | ||||
| - ширина | [мм] | 750 | 750 | 750 |
| - глубина | [мм] | 1000 | 1000 | 1000 |
| - высота | [мм] | 1885 | 1885 | 1885 |
Благодаря универсальной системе крепления есть возможность установки в ячейке измерительных трансформаторов различных типов. Для обеспечения максимальной гибкости конструкции, сборные шины исполняются на заказ или самим заказчиком. Доступ в отсек кабелей возможен только при отключении блокировки двери (блокировка в положении "дверь открыта"). Технические данные ячейки типа UMC
Основное оборудование
Компоновка верхнего левого модуля
отсек аппаратуры низкого напряжения
блокировочный узел
заземляющая шина
проходные изоляторы
Компоновка верхнего правого
модуля
отсек аппаратуры низкого напряжения
блокировочный узел
проходные изоляторы
Компоновка нижнего модуля:
корпус отсека сборных шин
Универсальная система крепления измерительных трансформаторов
Дополнительное оборудование
встроенный индикатор напряжения или контрольное гнездо для переносного индикатора
трансформаторы тока
трансформаторы напряжения
газовый канал
кабельный канал цепей управления
анти-конденсатный нагреватель
сквозная заземляющая шина