Материалы для текущего ремонта элегазовых выключателей HPL 550B2
| Состав антикоррозионный Valvoline Tectyln 506 | 5 | ||
| Бумага для застилки дна накопительных контейнеров | м2 | 10 | |
| Сухая ветошь из не ворсистого материала | м.п. | 5 | |
| Вода техническая | л | 50 | |
| Грунтовка НЦ-097 | кг | 1 | |
| Кисть малярная | шт. | 3 | |
| Комплект запасных частей к выключателю HPL 550B2* | к-т | 1 | |
| Лак бакелитовый ЛБС-1 | кг | 0,3 | |
| Лак электроизоляционный пропиточный ГФ-95 | кг | 0,2 | |
| Лента сигнальная штриховая | м | 50 | |
| Масла смазочные (выбирать согласно приложению В данной ТИ) | л | 1 | |
| Мыло твёрдое хозяйственное | шт. | 1 | |
| Материал полировочный (ScotchBrite) для медных контактных поверхностей | кг | 0,3 | |
| Нефрас-С2-80/120 | л | 10 | |
| Композиция противокоррозионная «Серебрянка» | л | 10 | |
| Салфетки технические | шт. | 40 | |
| Смазочный материал (выбирать согласно приложению В данной ТИ) | кг | 1 | |
| Спирт технический 95% (C2H5OH) | л | 3 | |
| Шкурка шлифовальная | м.п. | 2 | |
| Фиксатор резьбовых соединений Loctite 270 | кг | 1 | |
| Шпатлёвка клеевая | кг | 1 | |
| Элегаз | Лист 2 л | 10 | |
| Эмаль ПФ-115 (жёлтая) | л | 1 | |
| Эмаль ПФ-115 (зелёная) | л | 1 | |
| Эмаль ПФ-115 (красная) | л | 1 | |
| Эмаль ПФ-115 (чёрная) | л | 3 |
Примечание: допускается применение материалов других типов (марок), удовлетворяющих требованиям настоящей ТИ и действующих нормативных документов.
* – комплект (перечень) запасных частей к выключателю HPL 550B2, указаны в РЭ 3410-003HPL550-40108210-2011.
Средства оснащения для текущего ремонта элегазовых выключателей HPL 550B2
| 1. Ручной инструмент для слесарной обработки и сборки | |||
| Ключи моментные (комплект 9-550 Нм) | к-т | 1 | |
| Ручной слесарный инструмент (комплект) | к-т | 1 | |
| Шпатель | шт. | 1 | |
| Щётка металлическая | шт. | 2 | |
| Щётка проволочная для алюминиевых контактов | шт. | 1 | |
| Щётка-смётка | шт. | 2 | |
| 2. Транспортные машины и оборудование | |||
| Автоподъёмник | авт. | 1 | |
| 3. Средства измерений (контроля), испытаний | |||
| Мегомметр 1000, 2500В | шт. | по 1 | |
| Микроомметр | шт. | 1 | |
| Мост переменного тока | шт. | 1 | |
| Мост постоянного тока | шт. | 1 | |
| Программно-аппаратный комплекс РК-АЦП-03М | шт. | 1 | |
| Течеискатель | шт. | 1 | |
| Устройство для измерения времени срабатывания | шт. | 1 | |
| Штангенциркуль ШЦ-1-125-0,1 | шт. | 1 | |
| 4. Приспособления и специальный инструмент* | |||
| Газотехнологическое оборудование для очистки, сжатия и хранения использованного элегаза | шт. | 1 | |
| Измеритель давления элегаза | шт. | 1 | |
| Приспособление для разгрузки отключающего механизма | Лист 2 шт. | 1 | |
| 5. Средства индивидуальной защиты | |||
| Заземление переносное | шт. | 2 | |
| Каска защитная | шт. | 3 | |
| Очки защитные | шт. | 3 | |
| Перчатки (рукавицы) х/б | пары | 3 | |
| Перчатки диэлектрические | пары | 3 | |
| Перчатки резиновые технические | пары | 3 | |
| Полнолицевая маска с фильтром для мелких частиц и кислых газов | шт. | 3 | |
| Пояс предохранительный строительный | шт. | 3 | |
| 6. Прочее | |||
| Ведро оцинкованное 12 литров | шт. | 1 | |
| Контейнер герметичный для химических отходов | шт. | 1 | |
| Контейнер для накопления мелких деталей оборудования | шт. | 2 | |
| Контейнер для накопления мусора | шт. | 1 | |
| Огнетушитель углекислотный | шт. | 1 | |
| Полотно асбестовое | м2 | 1,5 | |
| Пылесос промышленный с микрофильтром и пластиковым соплом | шт. | 1 | |
| Уборочный инвентарь | к-т | 1 | |
| Удлинитель L=50 м | шт. | 2 |
Примечание: допускается применение средств оснащения на ремонт других типов (марок), удовлетворяющих требованиям настоящей ТИ и действующих нормативных документов.
* – номера чертежей приспособлений и специальных инструментов, рекомендованных к применению при текущем ремонте HPL 550B2, указаны в РЭ 3410-003HPL550-40108210-2011.

1 – опора полюса выключателя; 2 –полюс выключателя; 3 – металлическая сеть (биологическая защита); 4 – силовые шины (под напряжением); 5 – автоподъёмник; 6– дорожное полотно; 7 – трансформатор тока
Рисунок 1 – Схема расположения автоподъёмника для проведения текущего ремонта элегазового выключателя HPL 550B2 (вид сбоку)

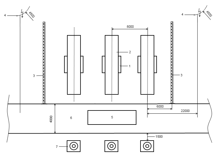
1 – опора полюса выключателя; 2 –полюс выключателя; 3 – металлическая сеть (биологическая защита); 4 – силовые шины (под напряжением); 5 – автоподъёмник; 6 – дорожное полотно; 7 – трансформатор тока
Рисунок 2 – Схема расположения автоподъёмника для проведения текущего ремонта элегазового выключателя HPL 550B 2(вид сверху)