13. Габаритные размеры

(*) Взаимозаменяемость крепления с предыдущей серией (345 x 400).

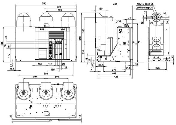
Фиксированные выключатели
| VD4 | ||
| TN | 7405 | |
| Ur | 12 | кВ |
| Ir | 630 | A |
| 1250 | A | |
| 16 | кА | |
| Isc | 20 | кА |
| 25 | кА | |
| 31,5 | кА | |
| VD4 | ||
| TN | 7405 | |
| Ur | 17,5 | кВ |
| Ir | 630 | A |
| 1250 | A | |
| 16 | кА | |
| Isc | 20 | кА |
| 25 | кА | |
| 31,5 | кА | |

(* ) Взаимозаменяемость крепления с предыдущей серией (345 x 520).
Фиксированные выключатели

Фиксированные выключатели
VD4
| TN | 1VCD003285 | |
| Ur | 12 | кВ |
| 17,5 | кВ | |
| Ir | 1250 | A |
| 1600 | A | |
| Isc | 40 | кА |


( ) Взаимозаменяемость крепления с предыдущей серией (345 x 650).
| VD4 | ||
| TN | 1VCD000051 | |
| Ur | 12 | кВ |
| Ir | 630 | A |
| 1250 | A | |
| 16 | кА | |
| Isc | 20 | кА |
| 25 | кА | |
| 31,5 | кА | |
| VD4 | ||
| TN | 1VCD000051 | |
| Ur | 17,5 | кВ |
| Ir | 630 | A |
| 1250 | A | |
| 16 | кА | |
| Isc | 20 | кА |
| 25 | кА | |
| 31,5 | кА | |

Фиксированные выключатели

(*) Взаимозаменяемость крепления с предыдущей серией (345 x 650).
| VD4 | ||
| TN | 7408 | |
| Ur | 12 | кВ |
| 17,5 | кВ | |
| 1600 | A | |
| Ir | 2000 | A |
| 2500 | A | |
| 20 | кА | |
| Isc | 25 | кА |
| 31,5 | кА | |
| VD4 | ||
| TN | 7408 | |
| Ur | 12 | кВ |
| 17,5 | кВ | |
| Ir | 2000 | А |
| 2500 | А | |
| Isc | 40 | кА |
Фиксированные выключатели
| VD4 | ||
| TN | 7407 | |
| Ur | 12-17,5 кВ | |
| Ir | 1600 | А |
| 2000 | А | |
| 20 | кА | |
| Isc | 25 | кА |
| 31,5 | кА | |
| 40 | кА | |
| VD4 | ||
| TN | 7407 | |
| Ur | 12-17,5 кВ | |
| Ir | 2500 | А |
| 20 | кА | |
| Isc | 25 | кА |
| 31,5 | кА | |
Фиксированные выключатели

Фиксированные выключатели


Фиксированные выключатели
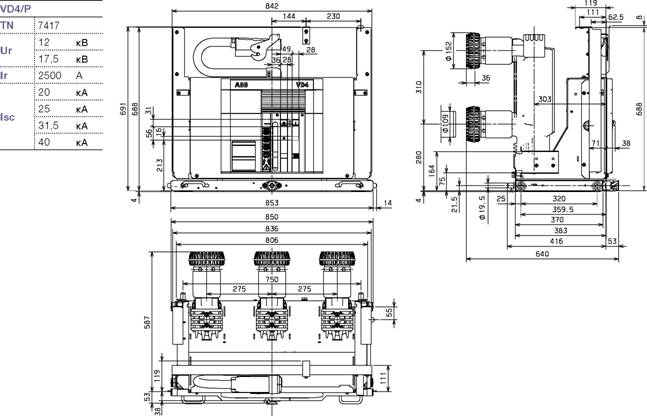
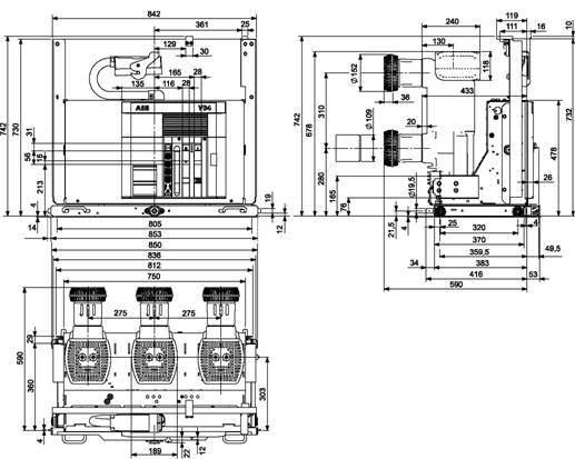
| VD4 | ||
| TN | 1VCD003441 | |
| Ur | 12 | кВ |
| 17,5 | кВ | |
| 1250 | A | |
| Ir | 1600 | A |
| 2000 | A | |
| 2500 | A | |
| Isc | 50 | кА |
Фиксированные выключатели

(*) 4000 А с принудительной вентиляцией

(*) Взаимозаменяемость крепления с предыдущей серией (345 x 520).



Фиксированные выключатели
| VD4 | ||
| TN | 7411 | |
| Ur | 24 | кВ |
| 1600 | А | |
| Ir | 2000 | А |
| 2500 | А | |
| 16 | кА | |
| Isc | 20 | кА |
| 25 | кА | |
(*) Взаимозаменяемость крепления с предыдущей серией (345 x 650).
Фиксированные выключатели
| VD4 | ||
| TN | 1VYN300901-LT | |
| Ur | 36 | кВ |
| 1250 | А | |
| Ir | 1600 | А |
| 2000 | А | |
| Isc | 31,5 | кА |
Взаимозаменяемость крепления с предыдущей серией (345 x 650).
Взаимозаменяемость крепления с предыдущей серией (345 x 650).

Выкатные выключатели для щитов UniGear ZS1 и модулей PowerCube

Выкатные выключатели для щитов UniGear ZS1 и модулей PowerCube
VD4/W (1'
| TN | 7420 | |
| Ur | 12 | кВ |
| Ir | 630 | A |
| 1250 | A | |
| 16 | кА | |
| Isc | 25 | кА |
| 31,5 | кА | |
| VD4/W (1> | ||
| TN | 7420 | |
| Ur | 17,5 | кВ |
| Ir | 630 | A |
| 1250 | A | |
| 16 | кА | |
| Isc | 25 | кА |
| 31,5 | кА | |
(1) Только для модулей PowerCube.
Выкатные выключатели для щитов UniGear ZS1 и модулей PowerCube

Выкатные выключатели для щитов UniGear ZS1 и модулей PowerCube

Выкатные выключатели для щитов UniGear ZS1 и модулей PowerCube

Выкатные выключатели для щитов UniGear ZS1 и модулей PowerCube

Выкатные выключатели для щитов UniGear ZS1 и модулей PowerCube

Выкатные выключатели для щитов UniGear ZS1 и модулей PowerCube


Выкатные выключатели для щитов UniGear ZS1 и модулей PowerCube

Выкатные выключатели для щитов UniGear ZS1 и модулей PowerCube
| VD4/P | ||
| TN | 1VCD003446 | |
| Ur | 12 | кВ |
| 17,5 | кВ | |
| Ir | 2500 | A |
| Isc | 50 | кА |
(1) Только для щитов UniGear ZS1.


Выкатные выключатели для модулей PowerCube
| VD4/W | |
| TN | 1VCD003596 |
| Ur | 12 кВ |
| 17,5 кВ | |
| Ir | 3150 A (*) |
| Isc | 50 кА |
(*) 3600 и 4000 А с принудительной вентиляцией.
Выкатные выключатели для щитов UniGear типа ZS1
| VD4/P | |
| TN | 1VCD003447 |
| Ur | 12 кВ |
| 17,5 кВ | |
| Ir | 3150 A (*) |
| Isc | 50 кА |


Выкатные выключатели для щитов UniGear типа ZS1
| VD4/P | ||
| TN | 1VCD000153 | |
| Ur | 12 | кВ |
| 17,5 | кВ | |
| Ir | 3150 | A |
| 20 | кА | |
| Isc | 25 | кА |
| 31,5 | кА | |
| 40 | кА | |
Выкатные выключатели для щитов UniGear ZS1 и модулей PowerCube
| VD4/P | ||
| TN | 7413 | |
| Ur | 24 | кВ |
| Ir | 630 | A |
| 1250 | A | |
| 16 | кА | |
| Isc | 20 | кА |
| 25 | кА | |
Выкатные выключатели для щитов UniGear ZS1 и модулей PowerCube
VD4/P (1'
| TN | 7414 | |
| Ur | 24 | кВ |
| Ir | 630 | А |
| 1250 | А | |
| 16 | кА | |
| Isc | 20 | кА |
| 25 | кА | |
(1) Только для щитов UniGear ZS1.
Выкатные выключатели для щитов UniGear ZS1 и модулей PowerCube
| VD4/P | ||
| TN | 7418 | |
| Ur | 24 | кВ |
| Ir | 1600 | А |
| 2000 | А | |
| 16 | кА (2) | |
| Isc | 20 | кА |
| 25 | кА | |
(2)Только для щитов UniGear ZS1.


Номинальный непрерывный ток 2300 А гарантирован при естественной вентиляции. Номинальный непрерывный ток 2500 А гарантирован при принудительной вентиляции.
Выкатные выключатели для модулей PowerCube



Выкатные выключатели для щитов ZS8.4
VD4/Z8
| TN | 1VCD000092 |
| Ur | 12 кВ |
| Ir | 630 A |
| Isc | 20 кА |
| 25 кА |
Выкатные выключатели для щитов ZS8.4
| VD4/ZT8 | |
| TN | 1VCD000093 |
| Ur | 12 кВ |
| Ir | 630 A |
| Isc | 20 кА |
| 25 кА | |

Выкатные выключатели для щитов ZS8.4
| VD4/ZS8 | |
| TN | 1VCD000091 |
| Ur | 12 кВ |
| Ir | 630 A |
| Isc | 20 кА |
| 25 кА | |
Выкатные выключатели для щитов ZS8.4

Выкатные выключатели для щитов ZS8.4

Выкатные выключатели для щитов ZS8.4

Выкатные выключатели для щитов ZS8.4

Выкатные выключатели для щитов ZS8.4


Выкатные выключатели для щитов ZS8.4

Выкатные выключатели для щитов ZS8.4
VD4/ZT8
| TN | 1VCD000090 |
| Ur | 24 кВ |
| Ir | 630 A |
| 16 кА | |
| Isc | 20 кА |
| 25 кА |
Выкатные выключатели для щитов ZS8.4

Выкатные выключатели для щитов ZS8.4


Выкатные выключатели для щитов UniSwitch и UniMix
VD4/US
| TN | 1VCD000047 | |
| Ur | 24 | кВ |
| Ir | 630 | A |
| 1250 | A | |
| 16 | кА | |
| Isc | 20 | кА |
| 25 | кА | |
Выкатные выключатели для щитов UniGear ZS1 и модулей PowerCube
| выключателя Тип | 0 A mm |
| VD4 36.12.32 | 35 |
| VD4 36.16.32 | 79 |
| VD4 36.20.32 | 75 |

| VD4 | ||
| TN | 1VYN300901-KG | |
| Ur | 36 | кВ |
| 1250 | A | |
| Ir | 1600 | A |
| 2000 | A | |
| Isc | 31,5 | кА |
(*) Взаимозаменяемость крепления с предыдущей серией (345 x 520).
"