Базовая комплектация вакуумного силового выключателя ВВСТ-35 включает в себя:
Аккумулятор включения, приводимый в действие вручную
Электропривод с механизмом предотвращения качения (М1)
Включающий электромагнит (Y9)
1 Расцепитель рабочего тока (Y1)
Вспомогательный выключатель 5S/50 (S1)
Счетчик циклов
Индикаторы ВКЛ-ВЫКЛ и "Пружина взведена"
Каждый вакуумный силовой выключатель типа ВВСТ-35 может иметь также следующую дополнительную комплектацию:
Позиционный переключатель для сообщения "Включающая пружина взведена" (S4)
2 Расцепитель рабочего тока ЗАХ1101 (Y2)
Расцепитель тока трансформатора ЗАХ1102 (Y4)
Расцепитель пониженного напряжения ЗАХ1103 (Y7)
Допустимые возможности комбинирования дополнительной комплектации, а также особые варианты исполнения приведены в соответствующем каталоге.
4.1. ПРИВОД (рис. 11)Привод представляет собой аккумулятор энергии, т.е. взвод включающей пружины не вызывает автоматической смены положения контактов.
Если аккумулятор заряжен, включение может быть произведено в любой момент времени.
Существует различие между приводами, приводимыми в действие вручную и от двигателя, причем в обоих случаях аккумулятор один и тот же.
Механическая энергия для выполнения последовательности "ВКЛ-ВЫКЛ-ВКЛ" сохраняется во включающих и выключающих пружинах.
4.2. ВКЛЮЧЕНИЕПриводы от двигателя (М1) с аккумулятором (деталь 2, рис. 11).
Аккумулятор силового выключателя можно заказать с приводом от двигателя вместе с включающим вспомогательным расцепителем. Привод от двигателя начинает работать фазу после того, как восстановлена подача питания к включающей пружине, первоначально находящейся в спущенном состоянии. После взвода включающей пружины двигатель автоматически включается внутренним выключателем.
Приведение в действие вручную может также производиться в любое время. Включающая пружина взводится вставляемой в отверстие (деталь 15, рис. 11) кривошипной рукояткой, пока на индикаторе не появится сообщение, "Пружина взведена", а внятный последующий щелчок означает, что собака включения защелкнулась. И, наконец, силовой выключатель можно включать вручную или электрически. После включения пружину можно снова взвести вручную.
При постоянном напряжении максимальная потребляемая мощность составляет около 700 Вт. При переменном напряжении максимальная потребляемая мощность составляет около 900 ВА В короткий период взвода приводные двигатели зачастую работают с перегрузкой.
Колебания питающего напряжения приводов от двигателя допустимы в диапазоне от -15% до +10% номинального питающего напряжение.
Щит управления
Переключатель „местно - дистанционно"
Переключатель "ВКЛ / ВЫКЛ" силового выключателя
Кпеммники
Стальная конструкция
Привод включения
Тяга
6. Транспортировочная крышка
Ввертная проушина
Рычаг
Болт
Предохранительная шайба
Оргстекло для наблюдения за механическим индикатором
Привод выключателя в приводной коробке
Рис. 10. Стальная конструкция для привода и щитка управления
Привод:

Привод
Двигатель
3 Механическая кнопка включения
Включающий магнит (расцепитель)
Выключающий магнит (расцепитель)
Механическая кнопка выключения
Шальтштанга для концевого выключателя
6. Механический индикатор „Пружина взведена"
Механический индикатор ВКЛ/ВЫКЛ
Рама из листовой стали
Амортизатор
Включающая пружина
Выключающая пружина
Вспомогательный выключатель
Отверстие для кривошипной рукоятки
Счетчик циклов

Приводной вал
18. Болт
Рис. 11. Детали привода
4.3. РАСЦЕПИТЕЛЬ РАБОЧЕГО ТОКАВключающий электромагнит (Y9) 3AY1510 (деталь 4, рис. 11)
Включающий электромагнит служит для разблокирования взведенной включающей пружины и тем самым для включения силового выключателя электрическим способом. Он может поставляться в исполнении для постоянного и переменного напряжения. Включающий электромагнит не предназначен для длительной эксплуатации и отключается внутренним выключателем. Колебания питающего напряжения включающего электромагнита допустимы в диапазоне от-15% до +10% номинального напряжения.
Потребляемая мощность: около190 Вт/ВА
Расцепитель рабочего тока (Y1) 3AY1510 (деталь 5, рис. 11)
Расцепитель рабочего тока 3AY1510, в общем, относится к базовому исполнению силового выключателя. В исполнении Y1 поступивший электрический пускающий импульс посредством магнитного якоря прямого действия передается дальше на защелку "ВЫКЛ", и таким образом силовой выключатель отключается. Этот выключающий электромагнит не предназначен для длительной эксплуатации и отключается внутренним выключателем. Колебания питающего напряжения расцепителя рабочего тока при постоянном напряжении допустимы в диапазоне от-30% до +10% номинального питающего напряжения.
Потребляемая мощность: около 190 Вт/ВА
Расцепитель рабочего тока (Y2) ЗАХ1101 (дополнительная опция)
Расцепитель рабочего тока 3AY1101 устанавливается в том случае, если одного расцепителя рабочего тока оказывается недостаточно. В этом исполнении электрическая команда на выключение посредством магнитного якоря разблокирует аккумулятор и передается дальше на защелку "ВЫКЛ", и таким образом силовой выключатель отключается. Этот выключающий электромагнит не предназначен для длительной эксплуатации и отключается внутренним выключателем.
Потребляемая мощность: около 60 Вт/100 ВА
Расцепитель тока трансформатора (Y4) ЗАХ1102 (дополнительная опция)
Расцепитель тока трансформатора состоят из аккумулятора, устройства разблокировки и электромагнитной системы. При превышении силы тока выключения (90% номинального тока трансформаторного расцепителя) блокировка аккумулятора снимается и выполняется выключение силового выключателя. Для применения расцепителей тока трансформатора наряду с главными трансформаторами для согласования требуются ещё и вспомогательные трансформаторы тока.
Потребляемая мощность для расцепителя с номинальным током отключения 0,5А ВА при 90% расчетного тока расцепителя и открытом якоре.
4.4. ВСПОМОГАТЕЛЬНЫЙ ВЫКЛЮЧАТЕЛЬ (S1) 3SV92(деталь 14, рис. 11)
Выключатель имеет 5 замыкающих и 5 размыкающих контактов. Он приводится в действие переключающим валом и включает вспомогательные электрические цепи. По отдельному заказу поставляется также вспомогательный выключатель с 11 замыкающими и 11 размыкающими контактами.
Номинальное напряжение изоляции: AC/DC 250 В.
Класс изоляции: С по DIN VDE0110
Ток длительной нагрузки: 10А
Предельный ток включения: 50А
Предельный ток выключения: в соответствии с таблицей 3.
Таблица 3
| Рабочее напряжение, В | Предельный ток выключения, А | |
| Омическая нагрузка | Индуктивная нагрузка | |
| ДО 230АС | 10 | 10 |
| 24 DC | 10 | 10 |
| 48 DC | 10 | 9 |
| 60 DC | 9 | 7 |
| 110 DC | 5 | 4 |
| 220 DC | 2,5 | 2 |
(дополнительная опция)
Аккумулятор силового выключателя ВВСТ-35 может быть снабжен механической (ключевой) системой блокировки между силовым выключателем и соответствующим разъединителем.

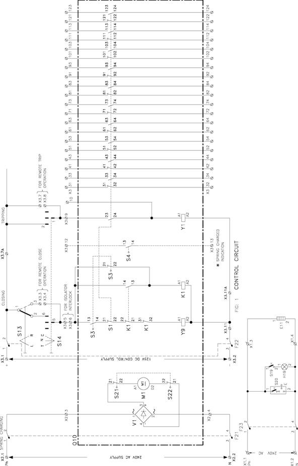
Схема электрическая принципиальная
"