
ВАКУУМНЫЙ ВЫКЛЮЧАТЕЛЬ ЭВОЛИС
4 ПРОХОДНОЙ ТРАНСФОРМАТОР ТОКА ТИПА ТПОЛ-10 (произв. «Schneider Electric»)
5 ОПН
ЗАЗЕМЛИТЕЛЬ SMALT (произв. «Schneider Electric»)
Варианты конструкции КСО Ф-05 с разными типами выключателей
С вакуумным выключателем ЭВОЛИС «Мерлин Жерен» («Schneider Electric»)
ПРИВОД УПРАВЛЕНИЯ ЗАЗЕМЛИТЕЛЕМ (произв. «Schneider Electric»)
С вакуумным выключателем BB/TEL ( «Таврида Электрик»)

ВАКУУМНЫЙ ВЫКЛЮЧАТЕЛЬ BB/TEL-10 4 ПРОХОДНОЙ ТРАНСФОРМАТОР ТОКА ТИПА ТПОЛ-10 (произв. «Таврида Электрик») 5 ОПН
ЗАЗЕМЛИТЕЛЬ SMALT (произв. «Schneider Electric») 6 УСТРОЙСТВО УПРАВЛЕНИЯ БО/TEL - 02
ПРИВОД УПРАВЛЕНИЯ ЗАЗЕМЛИТЕЛЕМ (произв. «Schneider Electric»)
ВАКУУМНЫЙ ВЫКЛЮЧАТЕЛЬ ВБ-10-20 (ФГУП«НПП» Контакт») 4 ПРОХОДНОЙ ТРАНСФОРМАТОР ТОКА ТИПА ТПОЛ-10
ЗАЗЕМЛИТЕЛЬ SMALT (произв. «Schneider Electric») 5 ОПН

С вакуумным выключателем ВБ-10-20 ( ФГУП «НПП» Контакт»)
ПРИВОД УПРАВЛЕНИЯ ЗАЗЕМЛИТЕЛЕМ (произв. «Schneider Electric»)
Токопроводы
Вводной токопровод

Секционный токопровод

Секционный токопровод

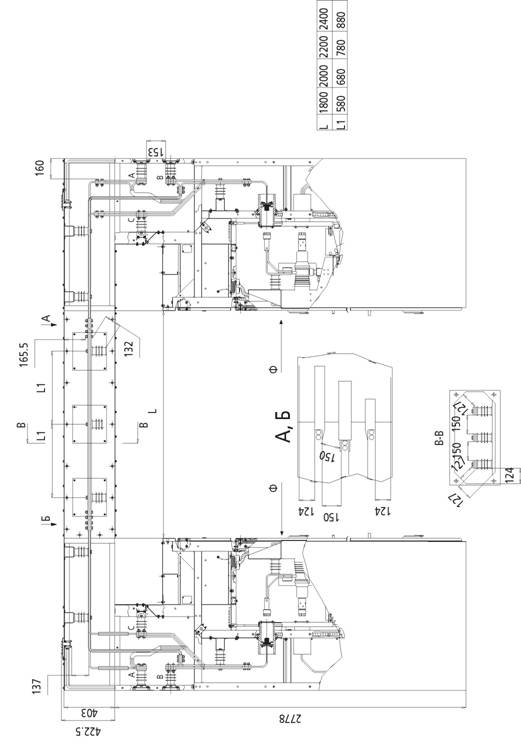
Установка КСО Ф-05

Конструкция КСО Ф-05 «МАКСИ»

| 1 | ВАКУУМНЫЙ ВЫКЛЮЧАТЕЛЬ ЭВОЛИС | 5 | КОНТАКТ ВТЫЧНОЙ SCHNIDER ELECTRIC 2500А |
| (произв. «Schneider Electric») | 6 | ЗАЗЕМЛИТЕЛЬ SMALT (произв. «Schneider Electric») | |
| 2 | ИЗОЛЯТОР ПРОХОДНОЙ TGZ-9-10B | 7 | ПРИВОД УПРАВЛЕНИЯ ЗАЗЕМЛИТЕЛЕМ (произв. «Schneider Electric») |
| 3 | ИЗОЛЯТОР ОПОРНЫЙ JZ10-107 | 8 | ПРОХОДНОЙ ТРАНСФОРМАТОР ТОКА ТИПА ТШЛ (ТШЛП) |
| 4 | ИЗОЛЯТОР ПРОХОДНОЙ CHZ-10-303 (2000-31 БОА) | 9 | НИЗКОВОЛЬТНЫЙ (РЕЛЕЙНЫЙ) ОТСЕК |