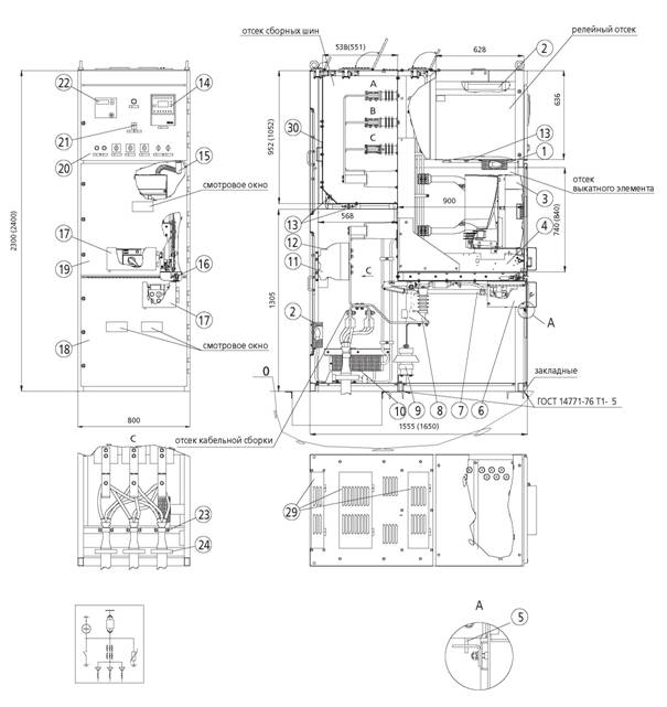
Шкаф вводного (секционного) выключателя ШВВ/ШСВ


| 1 | ЛАМПА ОСВЕЩЕНИЯ ОТСЕКА ВЫКАТНОГО | 16 | ФАСАДНАЯ ДВЕРЬ ОТСЕКА КАБЕЛЬНОЙ |
| ЭЛЕМЕНТА | СБОРКИ | ||
| 2 | ЛАМПА ОСВЕЩЕНИЯ ОТСЕКА | 17 | ФАСАДНАЯ ДВЕРЬ ОТСЕКА ВЫКАТНОГО |
| 3 | ВАКУУМНЫЙ ВЫКЛЮЧАТЕЛЬ | ЭЛЕМЕНТА | |
| 4 | КАССЕТА | 18 | ФАСАДНАЯ ДВЕРЬ ОТСЕКА РЕЛЕЙНОГО |
| 5 | БЛОКИРОВКА ФАСАДНОЙ ДВЕРИ ОТСЕКА | (НИЗКОВОЛЬТНОГО) ОТСЕКА | |
| КАБЕЛЬНОЙ СБОРКИ | 19 | КНОПКИ УПРАВЛЕНИЯ ОСВЕЩЕНИЕМ В | |
| 6 | ПРИВОД УПРАВЛЕНИЯ ЗАЗЕМЛИТЕЛЕМ | ОТСЕКАХ | |
| 7 | ШТАНГА ЗАЗЕМЛИТЕЛЯ | 20 | СБОРНЫЕ ШИНЫ |
| 8 | ОГРАНИЧИТЕЛЬ ПЕРЕНАПРЯЖЕНИЙ | 21 | ПРИСОЕДИНЕНИЯ К СБОРНЫМ ШИНАМ |
| 9 | ЗАЗЕМЛИТЕЛЬ | 22 | СЪЕМНЫЕ ЗАДНИЕ ДВЕРИ |
| 10 | ТЕН ОБОГРЕВА | 23 | ЗАЩИТНЫЙ КОЖУХ ТРАНСФОРМАТОРОВ |
| 11 | КРОНШТЕЙН ИЗОЛЯТОРОВ | ТОКА | |
| 12 | ФОТОТИРИСТОР | 24 | ШИННЫЙ ТРАНСФОРМАТОР ТОКА |
| 13 | МИКРОПРОЦЕССОРНОЕ УСТРОЙСТВО | 25 | ВЫКЛЮЧАТЕЛЬ ПУТЕВОЙ |
| 14 | СИЛОВОЙ РАЗЪЕМ ТИПА "HARTING" | 26 | КЛАПАН ДЛЯ ВЫБРОСА ГАЗА ИЗ ОТСЕКА |
| 15 | ЗАПИРАЕМЫЙ ЗАЩИТНЫЙ КОЖУХ | 27 | ЛЮЧОК СЪЕМНЫЙ |
Шкаф отходящей линии ШОЛ


| 1 | ЛАМПА ОСВЕЩЕНИЯ ОТСЕКА ВЫКАТНОГО | 18 | ФАСАДНАЯ ДВЕРЬ ОТСЕКА КАБЕЛЬНОЙ |
| ЭЛЕМЕНТА | СБОРКИ | ||
| 2 | ЛАМПА ОСВЕЩЕНИЯ ОТСЕКА | 19 | ФАСАДНАЯ ДВЕРЬ ОТСЕКА ВЫКАТНОГО |
| 3 | ВАКУУМНЫЙ ВЫКЛЮЧАТЕЛЬ | ЭЛЕМЕНТА | |
| 4 | КАССЕТА | 20 | ФАСАДНАЯ ДВЕРЬ ОТСЕКА РЕЛЕЙНОГО |
| 5 | БЛОКИРОВКА ФАСАДНОЙ ДВЕРИ ОТСЕКА | (НИЗКОВОЛЬТНОГО) ОТСЕКА | |
| КАБЕЛЬНОЙ СБОРКИ | 21 | КНОПКИ УПРАВЛЕНИЯ ОСВЕЩЕНИЕМ | |
| 6 | ПРИВОД УПРАВЛЕНИЯ ЗАЗЕМЛИТЕЛЕМ | В ОТСЕКАХ | |
| 7 | ШТАНГА ЗАЗЕМЛИТЕЛЯ | 22 | СЧЕТЧИК ЭЛЕКТРОЭНЕРГИИ ТИПА |
| 8 | ЗАЗЕМЛИТЕЛЬ | «ЕвроАпьфа» | |
| 9 | ОГРАНИЧИТЕЛЬ ПЕРЕНАПРЯЖЕНИЙ | 23 | ХОМУТ КРЕПЛЕНИЯ КАБЕЛЯ |
| 10 | ТЕН ОБОГРЕВА | 24 | ТРАНСФОРМАТОР ТОКА НУЛЕВОЙ |
| 11 | ИЗМЕРИТЕЛЬНЫЙ ТРАНСФОРМАТОР ТОКА | ПОСЛЕДОВАТЕЛЬНОСТИ ТИП АСБН 120 | |
| 12 | ЗАЩИТНЫЙ КОЖУХ ИЗМЕРИТЕЛЬНЫХ | 25 | СБОРНЫЕ ШИНЫ |
| ТРАНСФОРМАТОРОВ ТОКА | 26 | ПРИСОЕДИНЕНИЯ К СБОРНЫМ ШИНАМ | |
| 13 | ФОТОТИРИСТОР | 27 | СЪЕМНЫЕ ЗАДНИЕ ДВЕРИ |
| 14 | МИКРОПРОЦЕССОРНОЕ УСТРОЙСТВ | 28 | ВЫКЛЮЧАТЕЛЬ ПУТЕВОЙ |
| 15 | СИЛОВОЙ РАЗЪЕМ ТИПА "HARTING" | 29 | КЛАПАН ДЛЯ ВЫБРОСА ГАЗА ИЗ ОТСЕКА |
| 16 | БЛОКИРОВКА ВЫКЛЮЧАТЕЛЯ | 30 | ЛЮЧОК СЪЕМНЫЙ |
| 17 | ЗАПИРАЕМЫЙ ЗАЩИТНЫЙ КОЖУХ |
Шкаф шинного трансформатора напряжения ШТН


| 1 | ЛАМПА ОСВЕЩЕНИЯ ОТСЕКА ВЫКАТНОГО | 15 | ЗАПИРАЕМЫЙ ЗАЩИТНЫЙ КОЖУХ |
| ЭЛЕМЕНТА | 16 | ФАСАДНАЯ ДВЕРЬ ОТСЕКА КАБЕЛЬНОЙ | |
| 2 | ЛАМПА ОСВЕЩЕНИЯ ОТСЕКА | СБОРКИ | |
| 3 | ВЫКАТНОЙ ТН | 17 | ФАСАДНАЯ ДВЕРЬ ОТСЕКА ВЫКАТНОГО |
| 4 | КАССЕТА | ЭЛЕМЕНТА | |
| 5 | БЛОКИРОВКА ФАСАДНОЙ ДВЕРИ ОТСЕКА | 18 | ФАСАДНАЯ ДВЕРЬ ОТСЕКА РЕЛЕЙНОГО |
| КАБЕЛЬНОЙ СБОРКИ | (НИЗКОВОЛЬТНОГО) ОТСЕКА | ||
| 6 | ПРИВОД УПРАВЛЕНИЯ ЗАЗЕМЛИТЕЛЕМ | 19 | КНОПКИ УПРАВЛЕНИЯ ОСВЕЩЕНИЕМ |
| 7 | ШТАНГА ЗАЗЕМЛИТЕЛЯ | В ОТСЕКАХ | |
| 8 | ЗАЗЕМЛИТЕЛЬ | 20 | АВТОМАТИЧЕСКИЙ ВЫКЛЮЧАТЕЛЬ |
| 9 | ОГРАНИЧИТЕЛЬ ПЕРЕНАПРЯЖЕНИЙ | 21 | КЛАПАН ДЛЯ ВЫБРОСА ГАЗА ИЗ ОТСЕКА |
| 10 | ТЕН ОБОГРЕВА | 22 | СБОРНЫЕ ШИНЫ |
| 11 | КРОНШТЕЙН ИЗОЛЯТОРОВ | 23 | ПРИСОЕДИНЕНИЯ К СБОРНЫМ ШИНАМ |
| 12 | ФОТОТИРИСТОР | 24 | СЪЕМНЫЕ ЗАДНИЕ ДВЕРИ |
| 13 | МИКРОПРОЦЕССОРНОЕ УСТРОЙСТВО | 25 | ВЫКЛЮЧАТЕЛЬ ПУТЕВОЙ |
| 14 | СИЛОВОЙ РАЗЪЕМ ТИПА "HARTING" | 26 | ЛЮЧОК СЪЕМНЫЙ |
Вводные токопроводы
Шкаф «глухого ввода» КРУ Ф-02

Шкаф «глухого ввода» КРУ Ф-02, при необходимости транспозиции фаз

Секционные токопроводы
При двухрядном расположении шкафов секций КРУ

При двухрядном расположении шкафов секций КРУ

При однорядном расположении шкафов секций КРУ

Установка КРУ Ф-02
