+7 (351) 215-23-09


Наполнение сайта товарами, услугами, новостями и статьями

  1. S2DA, S2DAT, S2DA2T - 245 и 362 руководство
  2. Монтаж и регулировка
  3. Монтаж S2DA2T
  4. Подключение, проверка, наладка, обслуживание
  5. Демонтаж, замена деталей
  6. Чертежи и схемы
  7. Смазка, технические данные, форма регистрации пуска
  8. Габаритный чертеж, электрическая схема
Страница 8 из 8

Габаритный чертеж разъединителя

РИС. 11: Габаритный чертеж разъединителя

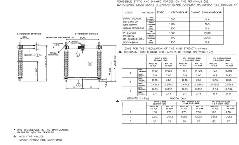
Силы и нагрузки действующие на разъединитель

РИС. 12: Силы и нагрузки действующие на разъединитель

Электрическая схема привода трехполюсного разъединителя

РИС. 13: Электрическая схема привода трехполюсного разъединителя