4.6. Блочные железобетонные подстанции заводской готовности типа РТП/ОЭнТ-1-20/0,4-У1
Блочные железобетонные подстанции заводской готовности типа РТП/ОЭнТ-1-20/0,4-У1 (далее РТП) могут комплектоваться электрооборудованием различных типов, по желанию Заказчика.
РТП может быть изготовлено с применением малогабаритных распределительных устройств типа РУ-СТ20(аналог RM-6, SM-6) с выключателями нагрузки в элегазовой изоляции FLUORC, вакуумными выключателями серии FLUVAC и вакуумными выключателями серии VEIVACUUM-L.
Варианты комплектации РТП/ОЭнТ-1-20/0,4-У1
Варианты комплектации указаны в таблице 4.11.
Таблица 4.11
| Тип ячеек | Кол- во ячеек шт. | Производитель ячеек | Тип выключателя | Производитель выключателя | |
| РТП/ОЭнТ- 1-20/0,4-У1 | РУ-СТ20 (аналог RM-6, SM-6) | 30 | ХК«ОЭнТ» | FLUORC FLUVAC, VEIVACUUM-L | «Areva» (Италия) |
Для ячеек РУ-СТ20(аналог RM-6, SM-6) схемы управления и автоматики могут быть выполнены как на основе реле, так и с использованием микропроцессорных устройств, таких как: Сириус, УЗА, Siemens Siprotec, Sepam 1000+, ABB Spac, REF, TOP-200, БМПЗ, БИМ и др.
РУ-0,4 кВ комплектуется низковольтными комплектными устройствами типа НКУ-СТ. В качестве коммутационных аппаратов предусмотрено использование автоматических выключателей, выключателей нагрузки, плавких вставок.
Таблица 4.12
Конструктивные характеристики РТП/ОЭнТ-1-20/0,4-У1
| РТП/ОЭнТ-1 -20/0,4-У1 | Габариты, мм (BxLxH) | S, м2 |
| 11000x9100x2900 | 100,1 |
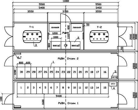
Варианты конструкции, компоновки, однолинейные схемы, устройство заземления, освещения и организация собственных нужд для РТП, представлены в графической части, лист 76-81.

| ЭПГК- 1000/08—ЭС | ||||||||
| РТП/ОЭнТ- 1 -20/0,4-У1 | ||||||||
| Изм | Лист | № документа | Подп. | Дата | ||||
| Разраб | Основные размеры здания | Стадия | Лист | Листов | ||||
| Проб. | Р | 76 | 1 | |||||
| Т. контр. | ||||||||
| Н. контр. | ЗАО "ХК "ОЭнТ" г.Москва | |||||||
| Утб. | ||||||||

| ЭПГК- 1000/08—ЭС | ||||||||||||
| РТП/ОЭнТ- 1 -20/0,4-У1 | ||||||||||||
| Изм | Лист | № документа | Подп. | Дата | ||||||||
| Разраб | Принципиальная однолинейная схема РУ—СТ20 (аналог RM-6.SM-6) и НКУ-СТ | Стадия | Лист | Листов | ||||||||
| Проб. | Р | 77 | 1 | |||||||||
| Т. контр. | ||||||||||||
| Н. контр. | ЗАО "ХК "ОЭнТ" г.Москва | |||||||||||
| Утб. | ||||||||||||
| Na | Наименование | Обозначение | кол. | |||||||||
| 1. | Комплектное распределительное устройство | PV-CT20 аналог RM—6i SM-6) | 30. | |||||||||
| 2. | Трансформатор SIEMENS | 4HB6467—3UAQ5 2500 кВА | 2. | |||||||||
| 3. | Низковольтное комплектное устройство | НКУ-СТ | 5. | |||||||||
| 4. | Шкаф собственных нужд | ШПСН | 1. | |||||||||
| 5. | Шкаф аварийного питания | ШАП—750 | 1. | |||||||||
| 6. | Тепловой конвертор | ЭВНБ- 1,5М 1,5кВт | 6. | |||||||||
| 7. | Полка инвентарная | 2. | ||||||||||

| ЭПГК- 1000/08—ЭС | ||||||||
| РТП/ОЭнТ-1 -20/0,4-У1 | ||||||||
| Изм | Лист | № документа | Подп. | Дата | ||||
| Разраб | Компоновка оборудования РТП с ячейками РУ-СТ20 (аналог RM-6.SM-6) и НКУ-СТ | Стадия | Лист | Листов | ||||
| Пров. | Р | 78 | 1 | |||||
| Т. контр. | ||||||||
| Н. контр. | ЗАО "ХК "ОЭнТ" г. Москва | |||||||
| Утв. | ||||||||

Сталь полосовая 40x4 ГОСТ 103-76
Сталь полосовая 25x4 ГОСТ 103-76 З.Электрод заземления 2,5м.Ст. уг. 50x50x5
Внутренний контур заземления проходит по стенам на высоте 400 мм. от пола.
| ЭПГК- 1000/08—ЭС | ||||||||
| РТП/ОЭнТ- 1 -20/0,4-У1 | ||||||||
| Изм | Лист | № документа | Подп. | Дата | ||||
| Разраб | Контур заземления | Стадия | Лист | Листов | ||||
| Проб. | Р | 79 | 1 | |||||
| Т. контр. | ||||||||
| Н. контр. | ЗАО "ХК "ОЭнТ" г. Москва | |||||||
| Утб. | ||||||||

| Марка Поз. | Обозначение на плане | Наименование оборудования | Кол. | Обозначение | Примечание |
| 1 | ![]() | Светильники с лампами накаливания 220В | 14 | НПП-03-100-005 | Устанавливаются в РУВН,РУНН и отсеках силовых трансформаторов |
| 2 | Светильники с лампами накаливания 12В | 32 | ПСХ 60-002 | Устанавливаются в кабельном подвале | |
| 3 | Выключатель поворотный | 3 | А016-001 | ||
| 4 | Розетка | 3 | РА16-236 | ||
| 5 | Датчик температуры | 1 | ДТКБ53 |
Примечание:
Освещение выполнить в соответствии с ПУЭ р 6.
Напряжение питания сети освещения ~220 В.
Напряжение питания сети освещения подвального помещения -12В 100 —Мощность лампы в светильнике, Вт
2,35м—Высота подвеса светильника над полом м
Линия осветительной сети прокладывается в металлорукавах РЗ-ЦХ—20 на высоте 2,4 ml Спуски к розеткам и выключателям выполняются в металлорукавах РЗ-ЦХ—20. Металлорукав крепится к стенам держателями 20мм .
Светильники ~220 В крепятся на стенах
Штепсельные розетки ~220 В устанавливаются на высоте 0,8 м от пола
Выключатели для светильников общего освещения устанавливаются на высоте 1,6 м. от пола
Светильники 12 В подвального освещения в РУВН смонтировать на стенах на расстоянии —0,2 ml от потолка
Датчик температуры устанавливается на стену на высоте 2м
| ЭПГК- 1000/08—ЭС | ||||||||
| РТП/ОЭнТ- 1 -20/0,4-У1 | ||||||||
| Изм | Лист | № документа | Подп. | Дата | ||||
| Разраб | Освещение | Стадия | Лист | Листов | ||||
| Пров. | Р | 80 | 1 | |||||
| Т. контр. | ||||||||
| Н. контр. | ЗАО "ХК "ОЭнТ" г.Москва | |||||||
| Утв. | ||||||||

| ЭПГК- 1000/08—ЭС | ||||||||
| РТП/ОЭнТ- 1 -20/0,4-У1 | ||||||||
| Изм | Лист | № документа | Подп. | Дата | ||||
| Разраб | Собственные нужды. | Стадия | Лист | Листов | ||||
| Проб. | Р | 81 | 1 | |||||
| Т. контр. | ||||||||
| Н. контр. | ЗАО "ХК "ОЭнТ" г.Москва | |||||||
| Утб. | ||||||||