2. Варианты комплектации подстанций
2.1. Сборные железобетонные подстанции типа РТП/ОЭнТ-1(Д)-10/0,4-У1
Сборные железобетонные подстанции типа РТП/ОЭнТ-1(Д)-10/0,4-У1 (далее РТП) комплектуются электрооборудованием различных типов, по желанию Заказчика.
РТП может быть изготовлено с двумя трансформаторами мощностью до 2500 кВА, РУ- 10(6) кВ с ячейками различных типов и применением различных вакуумных выключателей. Варианты комплектации указаны в таблице 1.1.
Таблица 1.1
Варианты комплектации РТП/ОЭнТ-1(Д)-10/0,4-У1
| Тип ячеек | Кол- во ячеек шт. | Производитель ячеек | Тип вакуумного выключателя | Производитель вакуумного выключателя | |
| РТП/ОЭнТ- 1(Д)-10/0,4- У1 | КСО-298П | 22 | ХК«ОЭнТ», ОАО "Самарский Трансформатор" | BB/TEL-10 ВБП-10 ВВУ-СЭЩ- 10 EVOLIS ЗАН-5 SION ЗАЕ VD4 ВВСТ-10 ЗАН-5 | РК«Таврида Электрик» ОАО"НПП "Контакт" ЗАО ГК |
| КСО-298 MSM-S «Волжанка» | 24 | «Электрощит" Schneider Electric | |||
| КРУ-2008Н | 22 | Siemens ABB ОАО "Самарский | |||
| КС-10(аналог D- 12Р) | 20 | Трансформатор Siemens |
Для всех ячеек схемы управления и автоматики могут быть выполнены как на основе реле, так и с использованием микропроцессорных устройств, таких как: Сириус, УЗА, Siemens Siprotec, Sepam 1000+, ABB Spac, REF, TOP-200, БМПЗ, БИМ и др.
РУ-0,4 кВ комплектуется панелями серии ЩО-02 производства ХК«ОЭнТ». Максимально возможное количество отходящих линий 0,4 кВ- 40 штук. В качестве коммутационных аппаратов предусмотрено использование автоматических выключателей типа ВА, ВА/СЭЩ (ЗАО ГК «Электрощит»), LS Susol LS Industrial Systems), Masterpact NT или NW(Schneider Electric), Compact NS (Merlin Gerin), ABB E2 или E3, Siemens, PMC (Moeller Electric) или предохранителей.
В табл. 1.2 приведены конструктивные характеристики РТП.
Таблица 1.2
Конструктивные характеристики РТП/ОЭнТ-1-10/0,4-У1
| РТП/ОЭнТ-1-10/0,4-У1 | Габариты, мм (BxLxH) | S, м2 |
| 15800x6270x5085 | 99,066 |
При необходимости увеличения (уменьшения) количества ячеек в РУ-ВН возможно изменение габаритов помещения, за счёт увеличения (уменьшения) числа стеновых панелей.
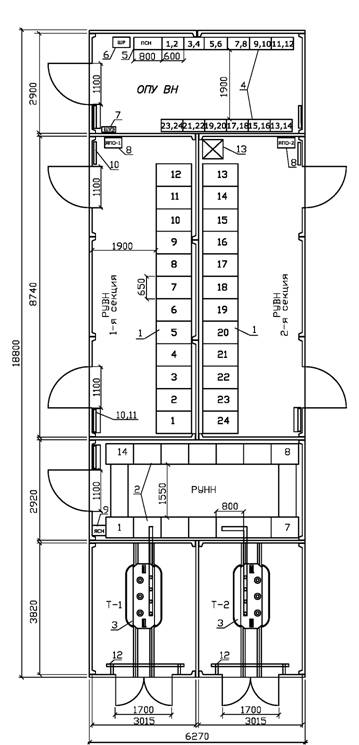
В состав РТП может входить оперативный пункт управления (ОПУ). При наличии ОПУ структура условного обозначения следующая РТП/ОЭнТ-1Д-10/0,4-У1. В этом случае габариты помещения увеличиваются за счет увеличения числа стеновых панелей. В ОПУ устанавливается шкаф управления РЗиА, в котором установлена схема управления положения выключателя, тележки и заземлителей. В ОПУ так же устанавливаются шкафы собственных нужд, сигнализации, телемеханики, АСКУЭ и противопожарной сигнализации.
В табл. 1.3 приведены конструктивные характеристики РТП с ОПУ.
Таблица 1.3
Конструктивные характеристики РТП/С)ЭнТ-1Д-10/0,4-У1
| РТП/ОЭнТ-1Д-10/0,4-У1 | Габариты, мм (BxLxH) | S, м2 |
| 18800x6270x5085 | 117,876 |
Варианты конструкции, компоновки, однолинейные схемы, устройство заземления, освещения и организация собственных нужд для РТП, представлены в графической части, лист 9- 21.

| ЭПГК- 1000/08—ЭС | ||||||||
| РТП/ОЭнТ- 1Д- 10/0,4-У1 | ||||||||
| Изм | Лист | № документа | Подп. | Дата | ||||
| Разраб | Основные размера здания | Стадия | Лист | Листов | ||||
| Проб. | Р | 9 | 1 | |||||
| Т. кон тр. | ||||||||
| Н. контр. | ЗАО "ХК "ОЭнТ" г.Москва | |||||||
| У/776. | ||||||||

| ЭПГК- 1000/08—ЭС | ||||||||
| РТП/ОЭнТ- 1 - 10/0,4-У1 | ||||||||
| Изм | Лист | № документа | Подп. | Дата | ||||
| Разраб | Принципиальная однолинейная схема КСО-298П и ЩО-02 | Стадия | Лист | Листов | ||||
| Пров. | Р | 10 | 1 | |||||
| Т. кон тр. | ||||||||
| Н. контр. | ЗАО "ХК "ОЭнТ" г.Москва | |||||||
| Утв. | ||||||||

| ЭПГК- 1000/08—ЭС | ||||||||
| РТП/ОЭнТ- 1Д- 10/0,4—У1 | ||||||||
| Изм | Лист | № документа | Подп. | Дата | ||||
| Разраб | Принципиальная однолинейная схема KCО—298MSM — Волжанка и ЩО—02 | Стадия | Лист | Листов | ||||
| Пров. | Р | 11 | 1 | |||||
| Т. кон тр. | ||||||||
| Н. контр. | ЗАО "ХК "ОЭнТ" г.Москва | |||||||
| Утв. | ||||||||

| ЭПГК- 1000/08—ЭС | ||||||||
| РТП/ОЭнТ- 1Д- 10/0,4-У1 | ||||||||
| Изм | Лист | № документа | Подп. | Дата | ||||
| Разраб | Принципиальная однолинейная схема. КРУ-2008Н и ЩО-02 | Стадия | Лист | Листов | ||||
| Пров. | Р | 12 | 1 | |||||
| Т. кон тр. | ||||||||
| Н. контр. | ЗАО "ХК "ОЭнТ" г.Москва | |||||||
| Утв. | ||||||||

| ЭПГК- 1000/08—ЭС | ||||||||
| РТП/ОЭнТ- 1Д- 10/0,4-У1 | ||||||||
| Изм | Лист | № документа | Подп. | Дата | ||||
| Разраб | Принципиальная однолинейная схема КС— 10 (аналог D-12P) и ЩО—02 | Стадия | Лист | Листов | ||||
| Пров. | Р | 13 | 1 | |||||
| Т. кон тр. | ||||||||
| Н. контр. | ЗАО "ХК "ОЭнТ" г.Москва | |||||||
| Утв. | ||||||||

Спецификация оборудования
| №. | Наименование | Обозначение | кол. |
| 1. | Камера сборная одностороннее обслуживания | КСО-298П | 22. |
| 2. | Панель распределительного щита одностороннего обслуживания | ЩО—02 | 14. |
| 3. | Трансформатор | ТСЛ 2500кВА | 2. |
| 4. | Шкаa распределительный РУВН | ШР | 1. |
| 5. | Шкаф освещения подвала секции 1(2) | ЯПО | 2. |
| 6. | Шкаф управления электропечами | ШУЭ | 1. |
| 7. | Шкаф собственных нужд РУНН | ЯСН | 1. |
| 8. | Тепловой конвертор | ЭВНБ-1.5М 1,5кВт | 5. |
| 9. | Полка инвентарная | 3. | |
| 10 | Барьер съемный | 2. |
| ЭПГК- 1000/08—ЭС | ||||||||
| РТП/ОЭнТ- 1 - 10/0, 4-У1 | ||||||||
| Изм | Лист | № документа | Подп. | Дата | ||||
| Разраб | Компоновка оборудования РТП с ячейками КСО-298П и ЩО-02 | Стадия | Лист | Листов | ||||
| Пров. | Р | 14 | 1 | |||||
| Т. кон тр. | ||||||||
| Н. контр. | ЗАО "ХК "ОЭнТ" г. Москва | |||||||
| Утв. | ||||||||

Спецификация оборудования
| № | Наименование | Обозначение | кол. |
| 1. | Камера сборная одностороннее обслуживания | KCО-298MSM-S "Волжанка" | 24. |
| Панель распределительного | |||
| 2. | щита одностороннего обслуживания | ЩО—02 | 14. |
| 3. | Трансформатор | ТСЛ 2500кВА | 2. |
| 4. | Шкаф управления и РЗиА | ШУ | 24. |
| 5. | Панель собственных нужд | ПСН | 1. |
| 6. | Шкаф распределительный РУВН и ОПУ | ШР | 1. |
| 7. | Шкаф управления электропечами | ШУЭ | 1. |
| 8. | Шкаф освещения подвала секции 1(2) | ЯПО | 2. |
| 9. | Шкаф собственных нужд РУНН | ЯСН | 1. |
| 10 | Тепловой конвертор | ЭВНБ- 1,5М 1,5кВт | 7. |
| 11 | Полка инвентарная | 4. | |
| 12 | Барьер съемный | 2. | |
| 13. | Тележка для выката выключателя | 1. |
| ЭПГК- 1000/08—ЭС | ||||||||
| РТП/ОЭнТ- 1Д-10/0,4-У1 | ||||||||
| Изм | Лист | № документа | Подп. | Дата | ||||
| Разраб | Компоновка оборудования РТП с ячейками KCО-298MSM-S "Волжанка" и ЩО-02 | Стадия | Лист | Листов | ||||
| Пров. | Р | 15 | 1 | |||||
| Т. кон тр. | ||||||||
| Н. контр. | ЗАО УК "ОЭнТ" г. Москва | |||||||
| Утв. | ||||||||

Спецификация оборудования
| №. | Наименование | Обозначение | кол. |
| 1. | Комплектное распределительное устройство | КРУ—2008Н | 22. |
| 2. | Панель распределительного щита одностороннего обслуживания | ЩО—02 | 14. |
| 3. | Трансформатор | ТСЛ 2500кВА | 2. |
| 4. | Шкаф распределительный РУВН | ШР | 1. |
| 5. | Шкаф освещения подвала секции 1(2) | ЯПО | 2. |
| 6. | Шкаф управления электропечами | ШУЭ | 1. |
| 7. | Шкаф собственных нужд РУНН | ЯСН | 1. |
| 8. | Тепловой конвертор | ЭВНБ-1.5М 1,5кВт | 5. |
|
|