+7 (351) 215-23-09


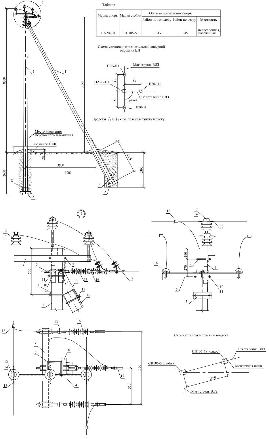
Ответвительная анкерная опора ОА20-1Н

Наполнение сайта товарами, услугами, новостями и статьями

Дополнительно по теме

Состав раздела

Расчетные пролеты ВЛЗ-6(10)кВ

Несущая способность закрепления в грунтах опор

Монтажные стрелы провеса

Промежуточная опора П20-1Н

Угловая промежуточная опора УП20-1Н

Анкерная (концевая) опора А20-1Н

Угловая анкерная опора УА20-1Н

Ответвительная анкерная опора ОА20-1Н

Угловая ответвительная анкерная опора УОА20-1Н

Устройство ответвления УО-3 на промежуточной опоре П20-1Н

Промежуточная опора П20-3Н

Угловая промежуточная опора УП20-3Н

Анкерная (концевая) опора А20-3Н

Угловая анкерная опора УА20-3Н

Ответвительная анкерная опора ОА20-3Н

Угловая ответвительная анкерная опора УОА20-3Н

Устройство ответвления УО-4 на промежуточной опоре П20-3Н

Ответвительная анкерная опора ОА20-1Н

Позиция

Наименование, обозначение

Кол-во

Масса ед., кг

1

2

3

4

5

6

7

8

9

10

11

12

13

14

15

16

17

18

19

Стойка СВ105-5

Плита П-Зи

Крепление подкоса У1

Траверса ТМ51

Траверса ТМ53

Траверса ТМ55

Хомут X1

Стяжка Г1

Заземляющий проводник ЗП1

Болт М20x260

Ганка М20

Штыревой изолятор IF27 или IF20

Соединитель UU 7-16

Колпачок К9

Спиральная вязка СВ

Подвесной изолятор SML 70/20Г

Анкерный зажим PAZ

Ответвительный зажим RP150

Шашечный зажим CD35

2

2

1

1

1

1

1

1

1,0м

2

3

3

3

3

6

3

3

3

4

1180

110

7,5

22,3

18,8

3,9

2,0

5,85

0,71

0,063

Спиральные вязки СВ35 применять для закрепления проводов сечением 35-50мм кв., СВ70 для проводов сечением 70-95мм кв., СВ 120 - для проводов сечением 120-150мм кв. Болт поз.8 отличается от болта М20 по ГОСТ 7798-70 только длиной нарезки (l нарезки = 70мм) Анкерный зажим PAZ 1 применять для крепления проводов сечением 50мм.кв., PAZ 2 - для проводов сечением 70-120мм кв. Для ВЛ 6-10 кВ угол 75°<a<105°. Подкос устанавливать на оси ответвления ВЛЗ.