ИЗМЕРИТЕЛЬНЫЕ ПРИБОРЫ
7.1 Трансформаторы тока
Значение первичного тока трансформатора надо выбрать среди стандартных значений как можно ближе к значению выполняемого измерения (например, измеряемый ток = 1120 A - первичный ток трансформатора 1250 A). Вторичный ток трансформатора обычно равен 1А или 5A и является функцией присоединяемых приборов и расстоянием между трансформатором и прибором. Потери в результате присоединенного сопротивления проводов в 25 раз больше при 5 A, чем при 1A.
Мощность трансформатора должна вычисляться как сумма потерь в проводах и потребляемой мощности подключенных приборов.
Предупреждение! Никогда не оставляйте вторичную цепь трансформатора разъединенной, когда первичные зажимы находятся под напряжением. Во вторичной цепи может возникнуть высокое напряжение, которое может привести к травме людей и/или повредить трансформатор.
7.1.1 Стандарты
| Электрические характеристики | 60044-1 |
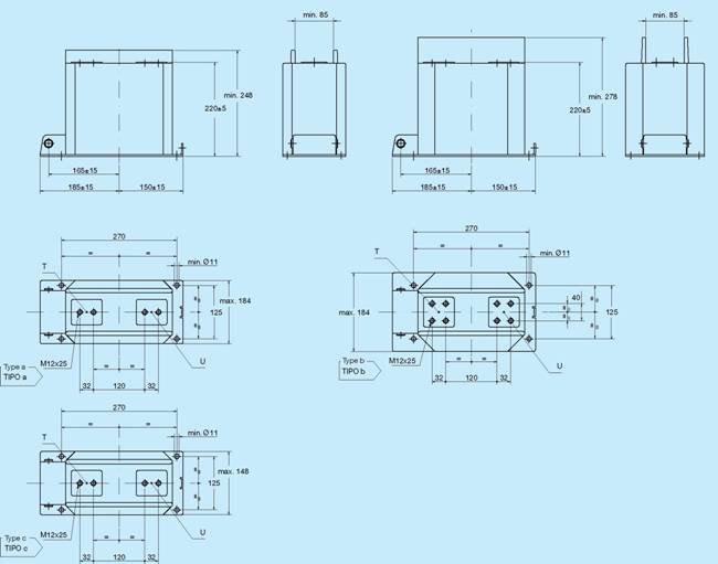
| Размеры | DIN 42600 узкий тип среднего и удлиненного размера |
7.1.2 Размеры
12-17.5 кВ

| Тип a | Распределительное устройство | Ток In-1250 A | ||||||
| b | 800/1000 мм | In>1250 A | ||||||
| In-2500 A | ||||||||
| c | 650 мм | In-1250 A | ||||||
| Исполнение | Код присоединения T | U | ||||||
| 1 | P1 | P2 | ||||||
| 2 | P2 | P1 | ||||||
| 3 | K | L | ||||||
| 4 | L | K | ||||||
| Тип | Распределительное устройство | Ток | ||||||
| a | In-1250 A | |||||||
| b | 800/1000 мм | In>1250 A | ||||||
| In-2000 A | ||||||||
24 кВ

| Исполнение | Код присоединения T | U |
| 1 | P1 | P2 |
| 2 | P2 | P1 |
| 3 | K | L |
| 4 | L | K |
7
7.1.3 Массы
| Номинал. напряжение кВ | Номинальный ток A | Тип | Масса кг |
| 1250 | Среднего размера | 20 | |
| 12-17.5 | Удлиненного размера | 31 | |
| 2500 | Среднего размера | 26 | |
| Удлиненного размера | 37 | ||
| 1250 | Среднего размера | 29 | |
| 24 | Удлиненного размера | 42 | |
| 2500 | Среднего размера | 33 | |
| Удлиненного размера | 46 |
7.1.4 Классы
IEC 60044-1
| Класс | 0.05 In | 0.2 In | Погрешность 0.5 In | In | 1.2 In | 0.05 In | Сдвиг фаз 0.2 In | In | 1.2 In |
| 0.2 | ±0.75% | ±0.35% | - | ±0.2% | ±0.2% | ±30' | ±15' | ±10' | ±10' |
| 0.5 | ±1.5% | ±0.75% | - | ±0.5% | ±0.5% | ±90' | ±45' | ±30' | ±30' |
| 1 | ±3% | ±1.5% | - | ±1% | ±1% | ±180' | ±90' | ±60' | ±60' |
| 3 | - | - | ±3% | - | ±3% | - | - | - | - |
| Класс | Погрешность | Сдвиг фаз | |||||||
| 0.05 In | 0.2 In | 0.5 In | In | 1.2 In | 0.05 In | 0.2 In | In | 1.2 In | |
| 0.2s | ±0.75% | ±0.35% | ±0.2% | ±0.2% | ±0.2% | ±30' | ±15' | ±10' | ±10' |
| 0.5s | ±1.5% | ±0.75% | ±0.5% | ±0.5% | ±0.5% | ±90' | ±45' | ±30' | ±30' |
| Класс | Погрешность | Сдвиг фаз | Суммарная погрешность |
| In | In | при предельном токе номинальной точности | |
| 5P | ±1% | ±60' | ±5% |
| 10P | ±3% | - | ±10% |
7.1.2 Типы
Некоторые типы трансформаторов, которые могут использоваться в распределительных устройствах UniGear, приводятся.
Изготовитель: ABB PTPM Брно (EJF, Чешская Республика)
Тип: TPU