Размеры
Susol
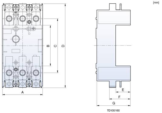
Фиксированная часть для TD100/160

| TD100/160 | |
| A(мм) | 90 |
| B(мм) | 92 |
| C(мм) | 122 |
| D(мм) | 189.2 |
| E(мм) | 32.5 |
| F(мм) | 47 |
| G(мм) | 75 |
Фиксированная часть втычного выключателя
Susol
Фиксированная часть для TS100/160/250/400/630/800

| TS100/160/250 | TS400/630 | TS800 | |
| A(мм) | 105 | 140 | 210 |
| B(мм) | 103.5 | 186.4 | 220 |
| C(мм) | 140 | 230 | 287 |
| D(мм) | 220 | 335.2 | 451 |
| E(мм) | 48.2 | 73 | 110 |
| F(мм) | 66 | 94.2 | 140 |
| G(мм) | 73 | 102 | - |
Фиксированная часть втычного выключателя
Размеры
Susol
Установка на передней панели

| Применяется с | TD100/160 | TS100/160/250 | TS400/630 | TS800 |
| A (мм) | 30 | 35 | 46.5 | 70 |
| B (мм) | 90 | 105 | 140 | 210 |
| C (мм) | 160 | 182 | 290 | 387 |
| D (мм) | 173 | 202 | 314 | 422 |
| E (мм) | M4 или 0 5 | M4 или 0 5 | M5 или 0 6 | M6 или 0 7 |
Фиксированная часть втычного выключателя
Susol
Установка на монтажной рейке

| Применяется с | TD100/160 | TS100/160/250 | TS400/630 | TS800 |
| A (мм) | 30 | 70 | 100 | 156 |
| B (мм) | 76 | 77.8 | 101.6 | 104.2 |
| C (мм) | 14 | 28 | 32 | 43 |
| D (мм) | M4 или 0 5 | M6 или 0 7 | M6 или 0 7 | M8 или 0 9 |
Фиксированная часть втычного выключателя
Установка на задней панели щита с изоляционной пластиной сзади аппарата
Размеры
Susol
[мм]

| Применяется с | TD100/160 | TS100/160/250 | TS400/630 | TS800 |
| A (мм) | 30 | 35 | 46.5 | 70 |
| B (мм) | 140 | 154 | 216 | 343 |
| C (мм) | M4 или 0 5 | M4 или 0 5 | M5 или 0 6 | M6 или 0 7 |
Фиксированная часть втычного выключателя
Susol
Монтаж
