Susol
Изолирующие крышки
ITS и ITL

| Применяется с | Тип | Размер, мм | |||||||
| Типоразмер выключателя | Число полюсов | Высокая | Низкая | A | B | C (Высокая) | C (Низкая) | D (Высокая) | (Низкая) |
| TD100, TD160 | 2P, 3P | ITL13 | ITS13 | 90 | 80.8 | 48.5 | 30.5 | 196 | 160 |
| 4P | ITL14 | ITS14 | 120 | 80.8 | 32 | 25 | |||
| TS100, TS160, TS250 | 2P, 3P | ITL23 | ITS23 | 105 | 80.8 | 102 | 36.3 | 321.4 | 190 |
| 4P | ITL24 | ITS24 | 140 | 80.8 | 98 | 32.3 | |||
| TS400, TS630 | 2P, 3P | ITL33 | ITS33 | 140 | 105 | 144.5 | 54.8 | 479.4 | 300 |
| 4P | ITL34 | ITS34 | 186 | 105 | 138.5 | 48.8 | |||
| TS800 | 2P, 3P | ITL43 | ITS43 | 210 | 127.8 | 181.5 | 61.5 | 600 | 360 |
| 4P | ITL44 | ITS44 | 280 | 127.8 | 172.5 | 52.5 | |||
Susol
Выводы для подключения сзади

[мм]
Выводы для подключения сзади
TD100 / TD160

Разметка отверстий
Размер выреза в передней панели

Susol
Выводы для подключения сзади
TS100 / TS160 / TS250 Плоские

С резьбовым зажимом

Разметка отверстий
Размер выреза в передней панели

Выводы для подключения сзади
TS400 / TS630
Плоские

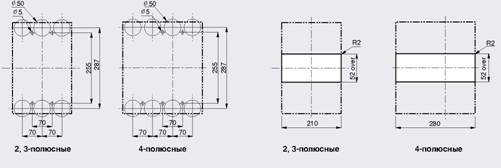
Разметка отверстий Размер выреза в передней панели

2, 3-полюсные 4-полюсные 2, 3-полюсные 4-полюсные
Susol
Выводы для подключения сзади
TS800
Плоские

Разметка отверстий
Размер выреза в передней панели